Chain-free three-bedroom flat with private terrace and garden beside Bishops Park and the Thames..
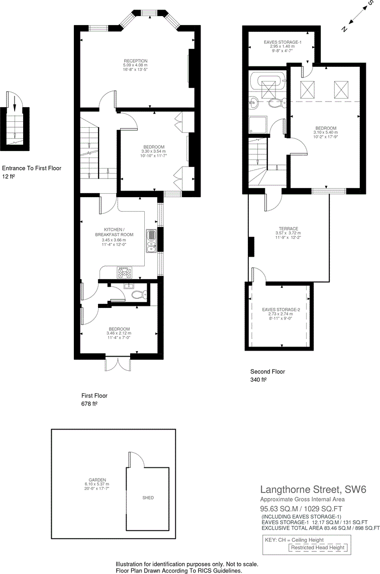
- Three bedrooms across split levels, retaining period fireplaces
- Private roof terrace plus ground-level garden with side street access
- Modern kitchen breakfast room with stainless steel appliances
- Single main bathroom; separate guest W/C only
- Share of freehold and offered chain free
- Constructed 1930s–1940s; solid brick walls likely uninsulated
- Double glazing installed pre-2002 may need upgrading
- Approximately 1,018 sq ft — average-sized flat
Bright and well-located three-bedroom split-level flat in the Bishops Park conservation area, offered with no onward chain and a share of freehold. The property spans about 1,018 sq ft and combines period character — original fireplaces in the reception and one bedroom — with a modern kitchen and useful ancillary space including a guest W/C.
The layout works well for families or professionals seeking easy access to green space and the river. A private roof terrace and ground-level garden with side street access provide outdoor living and entertaining options rare for Fulham flats. Excellent local amenities include Bishops Park, the Thames Path, Fulham Pier food hall and strong bus and tube links to Putney, Hammersmith and the West End.
Buyers should note a single main bathroom (plus guest W/C) for three bedrooms and that the building dates from the 1930s–40s with solid brick walls assumed uninsulated. Double glazing was installed before 2002 and some thermal or window upgrades could be considered. Overall size is described as average; potential exists to modernise further while retaining period features.
This chain-free, share-of-freehold flat is a straightforward purchase for those prioritising location, outdoor space and scope to add value through selective improvements. Early viewing is recommended given the location and outdoor amenities.
3 bedroom flat for sale in Queensmill Road,
Fulham, SW6 — £700,000 • 3 bed • 2 bath • 929 ft²
3 bedroom flat for sale in Munster Road, Fulham, SW6 — £750,000 • 3 bed • 2 bath • 1000 ft²
4 bedroom apartment for sale in Kenyon Street , Fulham, London, SW6 — £1,150,000 • 4 bed • 2 bath • 1248 ft²
2 bedroom apartment for sale in Queensmill Road , Fulham, London, SW6 — £700,000 • 2 bed • 2 bath • 1000 ft²
3 bedroom flat for sale in Fulham Palace Road,
Fulham, SW6 — £945,000 • 3 bed • 1 bath • 1174 ft²
3 bedroom terraced house for sale in Fulham Palace Road, London, W6 — £750,000 • 3 bed • 3 bath • 1464 ft²






















































