Low-maintenance second-floor flat with lift access and communal facilities.
Purpose-built retirement apartment with on-site house manager
A purpose-built, second-floor retirement apartment in Hazeldine Court, set within well-kept communal grounds beside the River Severn. The building offers lift access, secure entry and a range of resident facilities including a lounge, guest flat, laundry and an on-site house manager — useful for independent retirees seeking low-maintenance living near Shrewsbury town centre.
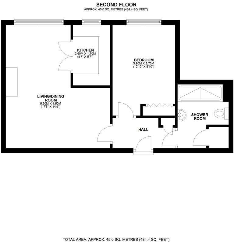
The one-bedroom layout includes a double bedroom with built-in wardrobes, a living/dining room with a feature fireplace and a separate fitted kitchen. The apartment has uPVC double glazing and electric storage heating; mains water, electricity and drainage are connected. An allocated off-street parking space and landscaped gardens with river views add everyday convenience and pleasant outlooks.
Important practical points are clear: the property is leasehold (105 years remaining) with an average service charge of £3,129, and there is a high local flood risk. Heating is electric storage radiators, which can mean higher running costs compared with gas. The vendor offers no ground rent and no service charge for the first two years, and the sale is chain-free.
This apartment will suit a retiree or downsizer wanting an established retirement community with on-site support and social spaces, close to shops and transport. Buyers should inspect to assess the accommodation and consider insurance, flood mitigation and ongoing service charge commitments before proceeding.
1 bedroom apartment for sale in Hazledine Court, Shrewsbury, SY3 — £130,000 • 1 bed • 1 bath • 590 ft²
1 bedroom retirement property for sale in Longden Coleham, Shrewsbury, SY3 — £135,000 • 1 bed • 1 bath • 632 ft²
1 bedroom apartment for sale in Hazeldine Court, Longden Coleham, Shrewsbury, Shropshire, SY3 — £120,000 • 1 bed • 1 bath • 432 ft²
2 bedroom apartment for sale in Hazledine Court, Shrewsbury, SY3 — £175,000 • 2 bed • 1 bath • 739 ft²
1 bedroom retirement property for sale in Hazeldine Court, Longden Coleham, Shrewsbury, SY3 — £110,000 • 1 bed • 1 bath • 453 ft²
1 bedroom retirement property for sale in Hazeldine Court, Longden Coleham, Shrewsbury, SY3 — £145,000 • 1 bed • 1 bath • 614 ft²


















































































