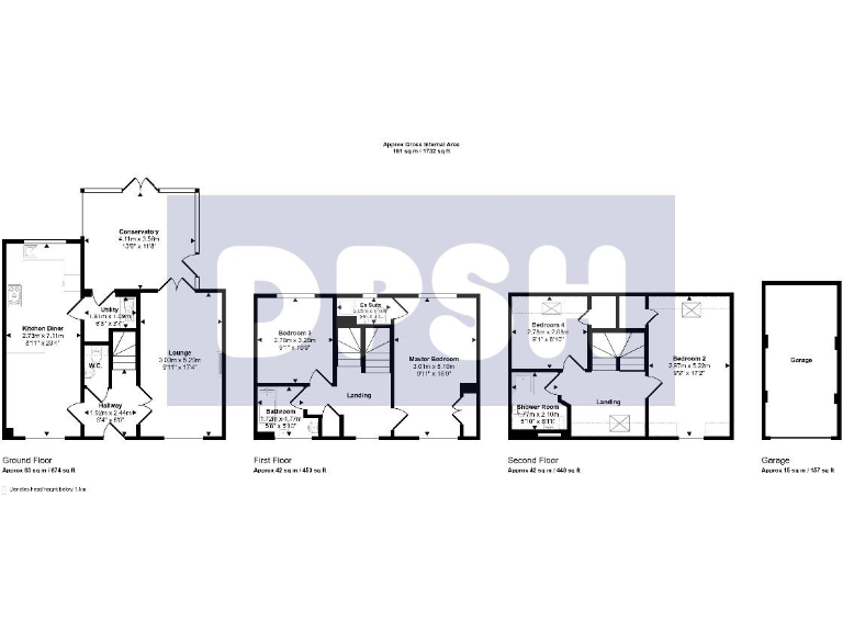
Four double bedrooms plus three bathrooms including master en-suite
Large 7m kitchen-diner with separate utility and integrated appliances
Conservatory and generous lounge creating flexible family space
Detached garage with new electric roller shutter; driveway for three cars
Private, low-maintenance rear garden with patio and artificial lawn
Modern build (post-2007), double glazed, gas central heating
Three-storey layout — not ideal for limited mobility buyers
Council tax moderate; crime levels average in the area
This substantial four-double-bedroom detached house in New Forest Village offers generous, flexible living across three floors — ideal for growing families. The large 7m kitchen-diner, separate utility, and spacious lounge that flows into a conservatory create bright everyday and entertaining spaces. The property is modern-built (post-2007), double-glazed and gas‑central heated, so it’s ready to move into with minimal immediate works required.
Outdoor space is practical and low-maintenance: a private, enclosed rear garden with patio and artificial lawn, decorative front planting, and a wide tarmac driveway for three cars leading to a powered detached garage with a new electric roller shutter. The plot is a decent size for the area, and outdoor sockets and a garden tap add convenience for family life and gardening.
Location strengths include walking distance to several good primary and secondary schools, nearby shops and leisure facilities, easy access to Middleton Park, and straightforward commuter links to the M62/M1. There is no flood risk, broadband and mobile signals are strong, and the neighbourhood classification indicates an established, professional family catchment.
Notable drawbacks: the home is three storeys so stairs are unavoidable — this may not suit mobility-restricted buyers or those wanting all accommodation on one level. Crime levels are average and council tax sits in a moderate band. While well presented, the property is modern rather than period — buyers seeking character features should note the contemporary specification. Any buyer should still arrange a full survey to confirm services and condition before purchase.



























































































































