Chain-free two-bedroom maisonette with private garden, loft storage and strong schools nearby.
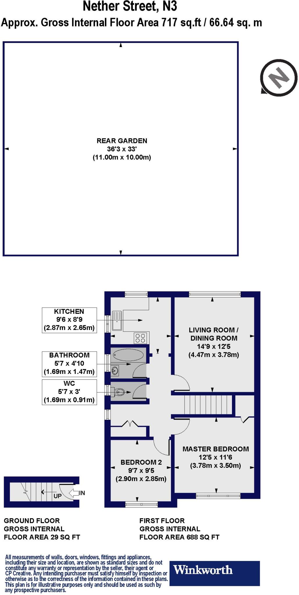
Two double bedrooms and spacious reception room
Private garden — rare for a first-floor maisonette
Share of freehold and chain-free sale
Loft storage for additional space
One bathroom plus separate WC (single full bathroom)
Average-sized rooms; compact layout for small family/couple
Cavity walls likely without added insulation (may need upgrading)
Good transport links and several well-regarded local schools
This first-floor, two-bedroom maisonette on Nether Street combines practical urban living with a private outdoor space — a rare find in Finchley. The apartment has two double bedrooms, a spacious reception room, fitted kitchen, bathroom plus separate WC, and loft storage, making it suitable for a couple or small family seeking good local schools and transport links.
The property benefits from a private garden, share of freehold and chain-free sale, speeding up move-in plans. Double glazing was installed after 2002 and mains gas central heating with a boiler and radiators provides reliable warmth. Local amenities are comprehensive, with shops, eateries and bus/rail connections within easy reach.
Buyers should note the accommodation is average-sized rather than generous; rooms are compact and the house was built in the 1950s–60s, so some updating may be desired. Cavity walls were built without added insulation (assumed), which could mean future energy-efficiency improvements are needed. There is one full bathroom plus a separate WC, which may be a consideration for larger households.
Overall, this maisonette is a sensible choice for buyers prioritising location, outdoor space and school access, with clear scope to personalise and improve energy performance over time.
2 bedroom maisonette for sale in Nether Street, London, N3 — £460,000 • 2 bed • 1 bath • 734 ft²
2 bedroom flat for sale in St. Ronans, Finchley Central, N3 — £465,000 • 2 bed • 1 bath • 1177 ft²
2 bedroom maisonette for sale in Market Place, East Finchley, N2 — £555,000 • 2 bed • 1 bath • 689 ft²
2 bedroom maisonette for sale in Grosvenor Road, Finchley, London, N3 — £490,000 • 2 bed • 1 bath • 687 ft²
2 bedroom apartment for sale in Long Lane, Finchley, N3 — £440,000 • 2 bed • 1 bath • 668 ft²
2 bedroom maisonette for sale in Manor Park Road, Finchley, N2 — £600,000 • 2 bed • 1 bath • 659 ft²










































































