**Property Highlights:**
- 3 spacious bedrooms with stunning countryside views
- Large rear garden featuring two workshops and polytunnels
- Modern pellet heating and cozy log fire stove
- Convenient 5-minute drive to Kelso
- Off-street parking for three vehicles
- Eco-friendly water and sewage systems
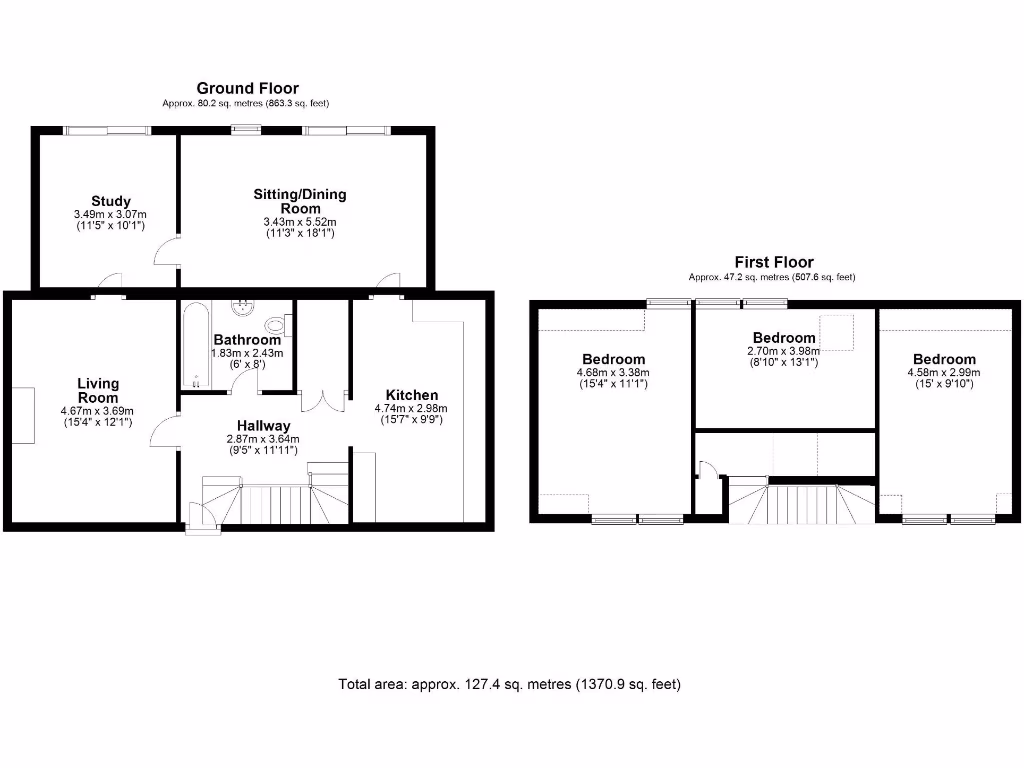
Nestled in a tranquil rural setting, this 3-bedroom terraced cottage offers an ideal blend of traditional charm and practical functionality. The large living spaces are filled with natural light, featuring two inviting reception rooms and a well-equipped kitchen that is perfect for family life. The home's eco-friendly pellet heating system, supplemented by a log fire stove, ensures warmth and comfort throughout the year.
Outdoors, the expansive garden presents a wealth of possibilities for gardening enthusiasts and provides not one, but two fully insulated workshops along with polytunnels for growing produce—perfect for those with aspirations of a self-sufficient lifestyle. The picturesque views from all bedrooms enhance your connection with the serene surroundings.
Situated just a five-minute drive from the vibrant market town of Kelso, this cottage offers the best of rural living while remaining easily accessible to essential amenities. While the property may require some cosmetic updates, its potential for personalization is vast, making it suitable for families, investors, or anyone seeking a peaceful retreat. This unique opportunity won’t last long; envision your future here in this delightful, character-rich cottage.
3 bedroom terraced house for sale in 2 Springhall Farm Cottages, Kelso, Roxburghshire, TD5 7QA, TD5 — £175,000 • 3 bed • 1 bath • 861 ft²
3 bedroom terraced house for sale in Kelso, Roxburghshire, TD5 8HU, TD5 — £185,000 • 3 bed • 1 bath • 1033 ft²
3 bedroom semi-detached house for sale in 2 Baillieknowe Farm Cottages, Stichill, Kelso, Scottish Borders, TD5 — £180,000 • 3 bed • 1 bath • 1079 ft²
3 bedroom semi-detached house for sale in 3 Baillieknowe Farm Cottages, Stichill, Kelso, Scottish Borders, TD5 — £185,000 • 3 bed • 1 bath • 1072 ft²
5 bedroom end of terrace house for sale in 5 Graden Farm Cottages, Kelso, TD5 8BS, TD5 — £248,000 • 5 bed • 2 bath • 1615 ft²
2 bedroom terraced house for sale in 2 Maidenhall Farm Cottages, St. Boswells, Melrose, Scottish Borders, TD6 — £175,000 • 2 bed • 1 bath • 753 ft²






























































































































































