Generous plot and single-storey living ideal for families or downsizers.
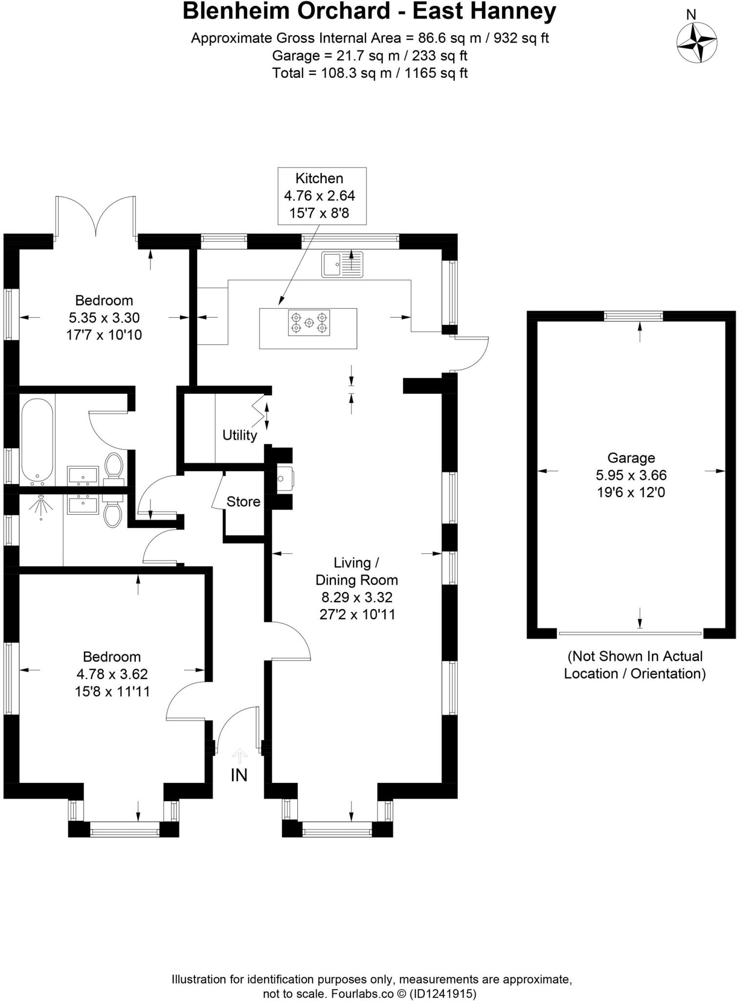
Detached single-storey bungalow on a large landscaped plot
Open-plan kitchen-diner with wood-burning stove and utility
Two bedrooms with ensuite plus separate shower room
Garage plus plentiful off-street parking and driveway
Double glazing fitted before 2002 (older units may need replacement)
Electric main fuel and boiler — potential higher running costs
Cavity walls as built with no added insulation assumed
EPC rating C; scope for energy-efficiency improvements
A neatly presented two-bedroom detached bungalow set on a generous plot in the popular village of East Hanney. The house offers a bright open-plan kitchen-diner with a wood-burning stove, separate utility, an ensuite and a shower room — ready for comfortable single-storey living. A large landscaped rear garden, garage and plentiful off-street parking are strong practical benefits for families or buyers seeking space and privacy.
The property dates from the mid-20th century and has double glazing (installed before 2002) and an EPC rating of C. Heating is by electric-fed boiler and radiators; the main fuel is electricity rather than gas. External cavity walls are as built with no added insulation assumed, so there is potential to improve thermal performance and running costs with targeted upgrades.
East Hanney offers village amenities including a primary school rated Good, a community shop and local pubs, plus nearby Wantage for wider services and commuter links. Broadband is reported fast and mobile signal excellent — useful for home working. Flood risk is low and the area is very affluent, making this a quiet, desirable setting with good community facilities and outdoor recreation nearby.
Overall this bungalow will suit downsizers, small families or buyers seeking single-storey living on a large plot who are comfortable with a mid-century build that could benefit from energy-efficiency improvements. It balances ready-to-move-in presentation with clear scope for targeted improvements to cut future costs and enhance comfort.
3 bedroom semi-detached house for sale in Ashfields Close, OX12 — £410,000 • 3 bed • 2 bath • 996 ft²
2 bedroom semi-detached house for sale in Rymans Crescent, East Hagbourne, OX11 — £300,000 • 2 bed • 1 bath • 505 ft²
3 bedroom detached house for sale in New Road, East Hagbourne, OX11 — £598,500 • 3 bed • 1 bath • 1007 ft²
5 bedroom detached house for sale in Stevenson Close, East Hanney, OX12 — £599,950 • 5 bed • 3 bath • 2277 ft²
3 bedroom semi-detached house for sale in Whitfield Gardens, East Hanney, Wantage, OX12 — £375,000 • 3 bed • 2 bath • 1198 ft²
2 bedroom semi-detached house for sale in Stevenson Close, East Hanney, Wantage, OX12 — £300,000 • 2 bed • 1 bath • 704 ft²














































































































