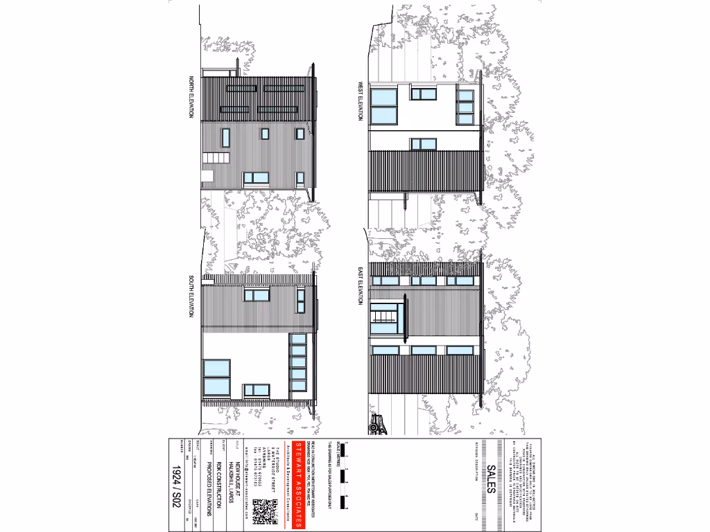
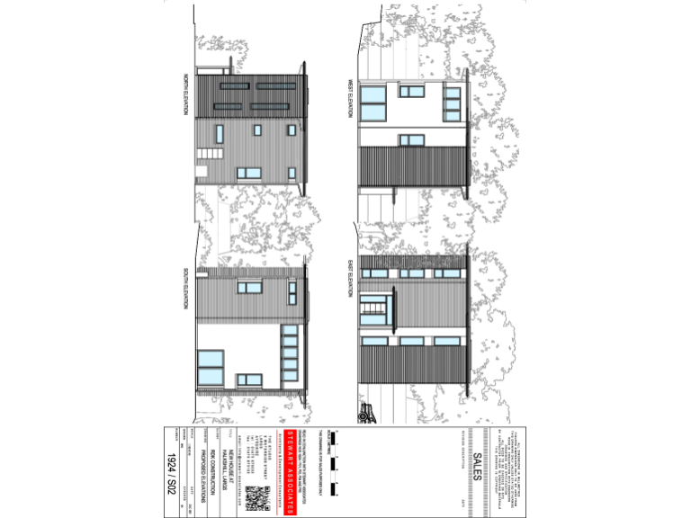
**Standout Features:**
- Generously sized residential plot of 1,480 sq m (0.37 acres)
- Planning permission for a unique detached three-storey home (reference 20/00319/PP)
- Located in the scenic outskirts of Largs, surrounded by mature woodland
- Potential for stunning sea views from upper floors
- Close proximity to excellent local amenities, schools, and transport links
**Summary:**
Discover an exceptional opportunity to create your dream home at the enchanting Halkshill House plot in Largs. This elevated residential site, set within private, mature woodland grounds, spans 1,480 sq m and comes with approved planning for a bespoke three-storey residence. The thoughtfully designed layout features a spacious ground floor open-plan living area, two inviting bedrooms on the first floor with a shared bathroom, and a luxurious top-floor suite with an en suite and a southwest-facing balcony.
With the potential for beautiful sea views, this plot is perfectly positioned near local amenities, including shops and reputable schools, ensuring a family-friendly atmosphere. Priced attractively at offers over £95,000, this is not just a piece of land but a chance to live in a stunning, nature-filled setting. Don't miss out on this rare opportunity to shape your future!
Land for sale in Plot 33-35 Irvine Road, Largs, KA30 8HS, KA30 — £150,000 • 1 bed • 1 bath
Land for sale in 12 Stanlane Place, Largs, KA30 — £120,000 • 1 bed • 1 bath • 732 ft²
Residential development for sale in Stanlane Place, Largs, Ayrshire, KA30 — £140,000 • 1 bed • 1 bath • 732 ft²
Land for sale in South of 29 The Lane, Skelmorlie, North Ayrshire, PA17 — £90,000 • 1 bed • 1 bath
Plot for sale in Burnfoot Road, Lochwinnoch, PA12 — £98,000 • 1 bed • 1 bath • 1415 ft²
Land for sale in Seacroft Main Road, Inverkip, PA16 0EA, PA16 — £332,500 • 1 bed • 1 bath • 8000 ft²










