GL3 4DJ - 3 bedroom terraced house for sale in Ermin Park, Brockworth…

View on Property Piper

3 bedroom terraced house for sale in Ermin Park, Brockworth, Gloucester, GL3

Summary - 121 Ermin Park, Brockworth GL3 4DJ

3 bed 1 bath Terraced

**Standout Features:**
- Cash buyers only due to non-standard construction
- Chain-free sale
- Three bedrooms (two doubles, one generous single)
- Large rear garden, perfect for outdoor activities
- Off-road parking space
- Convenient location near amenities, schools, and transport links
- Well-presented with gas central heating and double glazing
- Low council tax band B

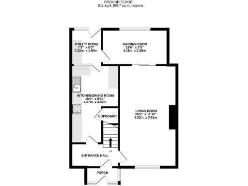
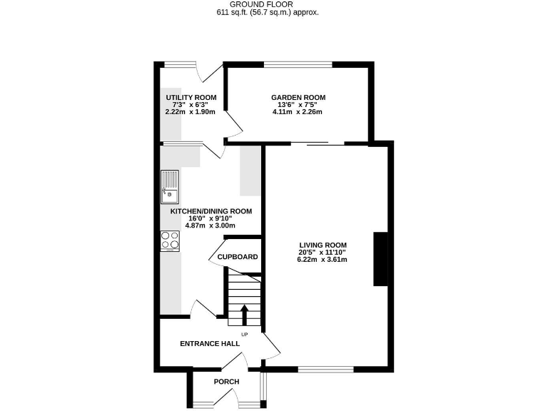
This charming three-bedroom mid-terraced home presents an ideal opportunity for cash buyers looking for a family-friendly property in Brockworth. With no onward chain, this residence offers seamless transition into a cozy living space enhanced by a generous rear garden—perfect for entertaining or gardening enthusiasts. The practical layout includes a spacious living room with sliding doors leading to the sun room, an efficient kitchen/diner, and a functional utility area.

Upstairs, you’ll find two double bedrooms and a third single bedroom, all bathed in natural light from double-glazed windows. The local area provides a high-quality living environment, boasting numerous amenities, good schools, and easy access to transportation routes. While the non-standard construction may limit financing options, this property is well-maintained and offers potential for personal touches and renovations to enhance its charm further. Don’t miss out on the chance to make this delightful home yours—schedule a viewing today!

Property Details

Brochure Descriptions

Image Descriptions

Floorplan Description

Rooms

Textual Property Features

Detected Visual Features

EPC Details

Nearby Schools

Nearest Bars And Restaurants

,,,,}

Nearest General Shops

,,}

Nearest Grocery shops

,,}

Nearest Supermarkets

,,}

Nearest Religious buildings

,,}

Nearest Medical buildings

,,,}

Nearest Leisure Facilities

,,,,}

Nearest Tourist attractions

,,}

Nearest Train stations

,,,,}

Nearest Bus stations and stops

,,,,}

Nearest Hotels

,,}

Tags

Local Market Stats

AirBnB Data

Similar Properties

Meta

High Res Images

Compatible Images

Low res Images

Thumbnails

Raw Images

High Res Floorplan Images

Compatible Floorplan Images

Low res Floorplan Images

FloorplanImages Thumbnail

Raw Floorplan Images