Three acres of mature grounds with versatile outbuildings and countryside views.
Detached four-bedroom timber‑framed cottage with original beams and character features
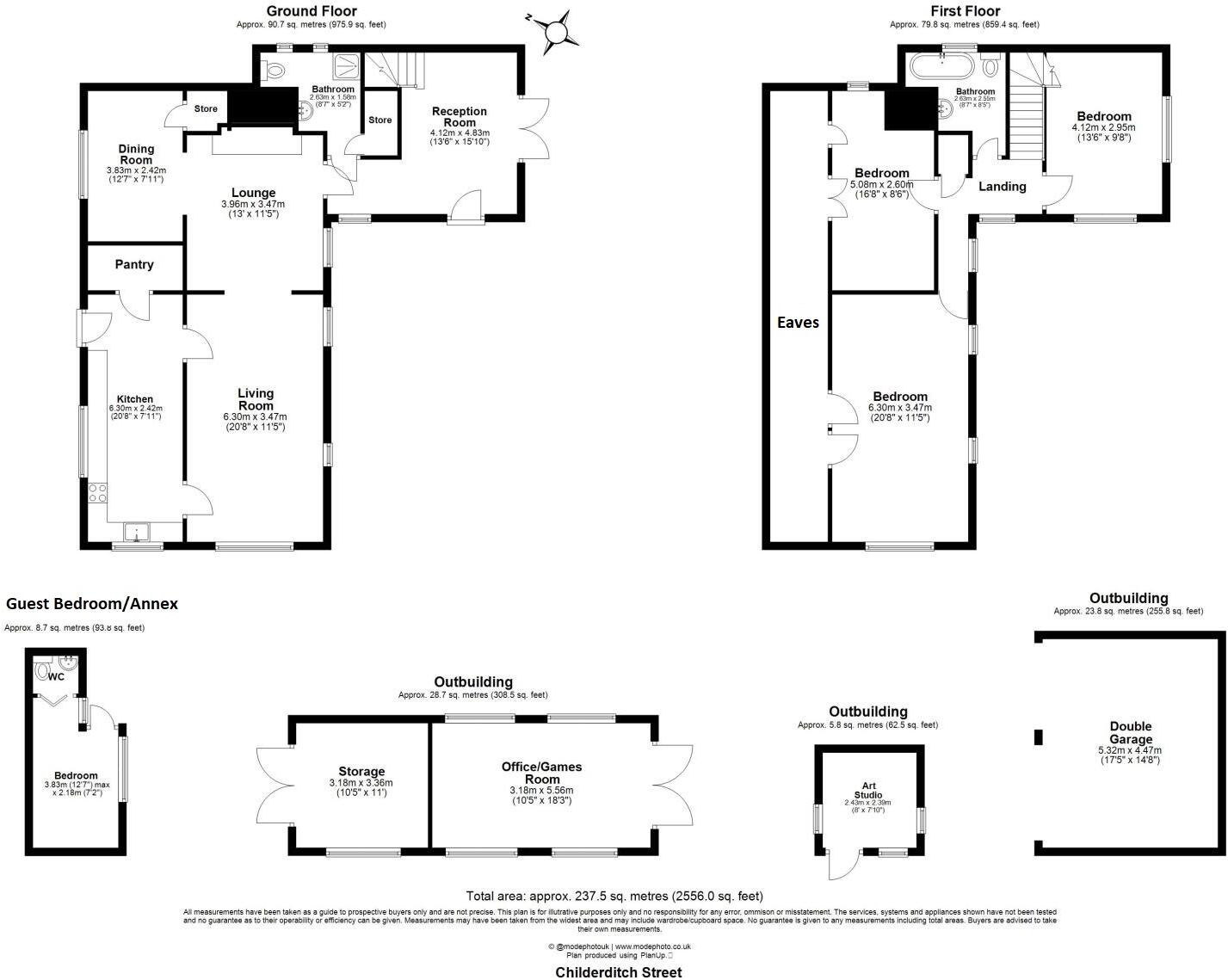
Rosebrook Cottage is a characterful four-bedroom detached period home set within approximately three acres of mature, secluded grounds. The house retains exposed timber beams, leaded windows and several reception rooms, offering flexible family living and scope to modernise sympathetically. A separate converted outbuilding provides a self-contained guest bedroom with W/C, plus additional studio and games-room outbuildings.
The accommodation includes a well-equipped kitchen with adjoining pantry, a ground-floor bathroom and three first-floor bedrooms with a second family bathroom. Extensive eaves along one side offer significant storage and potential to enlarge the two main bedrooms, subject to consents. The property footprint is modest compared with the very large plot, creating opportunities for garden development or ancillary uses.
Practical considerations: broadband speeds are very slow and council tax is described as quite expensive. The property sits in a peaceful hamlet location with good links to Brentwood and London, but local crime statistics are noted as high; tenure details are not provided and ongoing maintenance will be necessary to care for period features.
This home will suit buyers seeking privacy, character and substantial outdoor amenity—families wanting space for children and hobbies, or those needing home-office and studio outbuildings. It offers strong lifestyle appeal but requires acceptance of rural utilities, maintenance and clarified tenure before purchase.
3 bedroom detached house for sale in King Street, High Ongar, Ongar, CM5 — £995,000 • 3 bed • 2 bath • 1532 ft²
5 bedroom detached house for sale in Stanford Rivers, Ongar CM5 — £1,650,000 • 5 bed • 2 bath • 3533 ft²
3 bedroom cottage for sale in Place Cottages, Rettendon Common, CM3 — £585,000 • 3 bed • 2 bath • 763 ft²
2 bedroom cottage for sale in Dark Lane, Great Warley, Brentwood, CM14 — £600,000 • 2 bed • 2 bath • 887 ft²
2 bedroom bungalow for sale in Smallgains Lane, Stock, CM4 — £1,400,000 • 2 bed • 3 bath • 2108 ft²
3 bedroom detached house for sale in Tower Cottages, Ongar Road, CM15 — £1,150,000 • 3 bed • 2 bath • 1932 ft²






























































































































