Characterful three-bed terrace near Reading station — scope to modernise and add value.
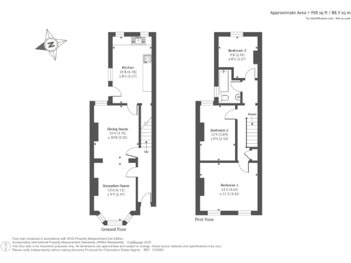
Bay-fronted Victorian terrace with original period features
Open-plan living/dining with fireplace and wooden floors
Country-style kitchen/breakfast room; practical everyday layout
Three separate bedrooms; single first-floor bathroom
Large plot for a mid-terrace; potential to extend/landscape subject to consents
Double glazing (post-2002) and mains gas central heating present
Solid brick walls assumed uninsulated; energy-efficiency upgrades likely needed
Inner-city location: high local crime rate and area deprivation
This bay-fronted Victorian terrace offers a compact, characterful home in the heart of Reading, minutes from the Oracle, town centre and station. The open-plan living/dining room with fireplace and wooden floors creates an inviting main space, while a country-style kitchen/breakfast room provides everyday practicality. At 958 sq ft the layout fits a growing couple or first-time buyers seeking period features and city convenience.
The house has three separate bedrooms and a first-floor bathroom, arranged over an average-sized footprint and set on a large plot for a terraced property. Recent double glazing (installed post-2002) and mains gas central heating with a boiler and radiators are practical comforts already in place. Freehold tenure and an affordable council tax band add to the cost predictability for buyers.
Be candid about practical work needed: the property’s solid brick walls are assumed to have no insulation, so energy-efficiency improvements may be advisable. The home sits in an inner-city, high-crime and relatively deprived area; this affects local feel and could influence resale or rental choices. There is only one bathroom for three bedrooms, which may be a constraint for some households.
For buyers willing to invest modestly, the period features and central location offer clear upside — a sympathetic renovation to improve insulation, modernise services and add contemporary storage could raise comfort and value. This is a straightforward opportunity for first-time buyers or investor purchasers looking to add value close to Reading’s transport and amenities.































































































