Low-maintenance two-bedroom park home with garden and garage in desirable Marina View..
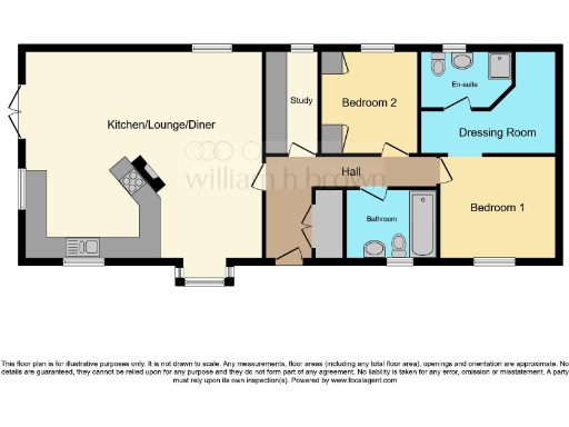
- Two double bedrooms; master with dressing room and en-suite
- Separate study ideal for home working or storage
- Open-plan kitchen/diner and lounge with patio doors
- Large enclosed garden and single garage for storage
- Compact overall size ~658 sq ft; efficient low-maintenance layout
- Park home tenure not specified — confirm ownership terms
- Services and appliances untested; buyer survey strongly advised
- Low flood risk; council tax described as very cheap
A tidy, modern park home arranged as two double bedrooms plus a separate study, designed for low-maintenance living in a quiet Marina View location. The master bedroom includes a dressing room and en-suite, while the open-plan kitchen/diner and lounge create a bright, sociable ground-floor space with patio access to the enclosed garden.
Outside, a large enclosed garden and single garage extend usable space for hobbies, storage and outdoor relaxation with open field views to the side. The home is compact at around 658 sq ft, with contemporary finishes and practical features such as an induction hob, under-cupboard lighting and a recently serviced combi boiler.
Important practical points: this is a park home with tenure not specified and services/appliances have not been independently tested, so buyers should commission their own checks. The property suits downsizers or buyers seeking a low-upkeep country-base close to local amenities, but the compact footprint and tenure questions mean it’s best suited to those prioritising affordability and ease rather than long-term conventional bricks-and-mortar investment.
2 bedroom lodge for sale in Marina View, Dogdyke, Lincoln, LN4 — £145,000 • 2 bed • 2 bath • 696 ft²
2 bedroom lodge for sale in Marina View, Dogdyke, Lincoln, LN4 — £135,000 • 2 bed • 1 bath • 578 ft²
2 bedroom park home for sale in Marina View, Dogdyke, Lincoln, LN4 — £85,000 • 2 bed • 1 bath • 573 ft²
2 bedroom park home for sale in Hawthorn Hill, Dogdyke, Lincoln, LN4 — £130,000 • 2 bed • 2 bath
2 bedroom park home for sale in Lincoln, Lincolnshire, LN4 — £159,995 • 2 bed • 2 bath • 900 ft²
3 bedroom lodge for sale in Marina View, Dogdyke, Lincoln, LN4 — £100,000 • 3 bed • 1 bath • 711 ft²






















































