Well-presented three-bedroom family home with garage and south garden.
South-facing enclosed rear garden with patio and lawn
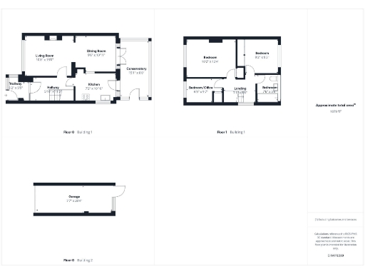
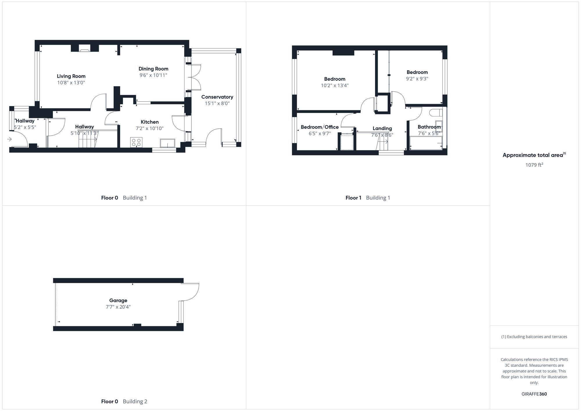
This well-presented three-bedroom semi is a comfortable family home in sought-after Felpham, arranged over two floors with generous reception space and a bright conservatory. The open-plan living/dining room flows to the conservatory and south-facing rear garden, giving good natural light and a pleasant place for children or outdoor entertaining.
Practical features include a modern fitted kitchen, an attached garage with a recently replaced roof, and a driveway providing off-street parking for two vehicles. The property sits on a decent plot and benefits from double glazing and a mains gas boiler with radiator heating; the current EPC is C.
Notable drawbacks are the single family bathroom for three bedrooms and the original cavity walls (assumed uninsulated), which may mean higher heating costs compared with newer builds. Broadband speeds are average and council tax is moderate. Overall, this is a solid, move-in-ready suburban home with scope for incremental energy improvements and cosmetic updating to suit modern tastes.
Local amenities are strong for family life — good-rated primary and secondary schools, village shops, cafés, and easy road links along the A27. The nearby coastline and sailing facilities add lifestyle appeal, making this a practical buy for growing families or those trading down from larger properties.
3 bedroom semi-detached house for sale in Ferndown Gardens, Felpham, Bognor Regis, West Sussex, PO22 — £350,000 • 3 bed • 1 bath • 1042 ft²
3 bedroom semi-detached house for sale in Outerwyke Road, Felpham, Bognor Regis, West Sussex, PO22 — £395,000 • 3 bed • 1 bath • 1758 ft²
3 bedroom semi-detached house for sale in Ullswater Grove, Felpham, Bognor Regis, PO22 — £375,000 • 3 bed • 1 bath • 1049 ft²
3 bedroom semi-detached house for sale in Old Rectory Gardens, Felpham, PO22 — £335,000 • 3 bed • 1 bath • 1014 ft²
3 bedroom semi-detached house for sale in Red Barn Crescent, Felpham, PO22 — £330,000 • 3 bed • 2 bath • 819 ft²
3 bedroom semi-detached house for sale in Poulner Close, Felpham, West Sussex, PO22 — £365,000 • 3 bed • 1 bath • 1015 ft²


















































































