**Standout Features:**
- **Size:** 3-bedroom mid-townhouse, approximately 1,023 sq. ft.
- **Parking:** Integrated garage and off-street driveway.
- **Outdoor Space:** Enclosed rear garden for privacy.
- **Modern Design:** Contemporary finishes with ample natural light.
- **Condition:** Good overall condition, but some maintenance needed for the driveway.
**Potential Concerns:**
- Averaged-sized garage and driveway may require upkeep.
- Limited plot size could restrict outdoor activities.
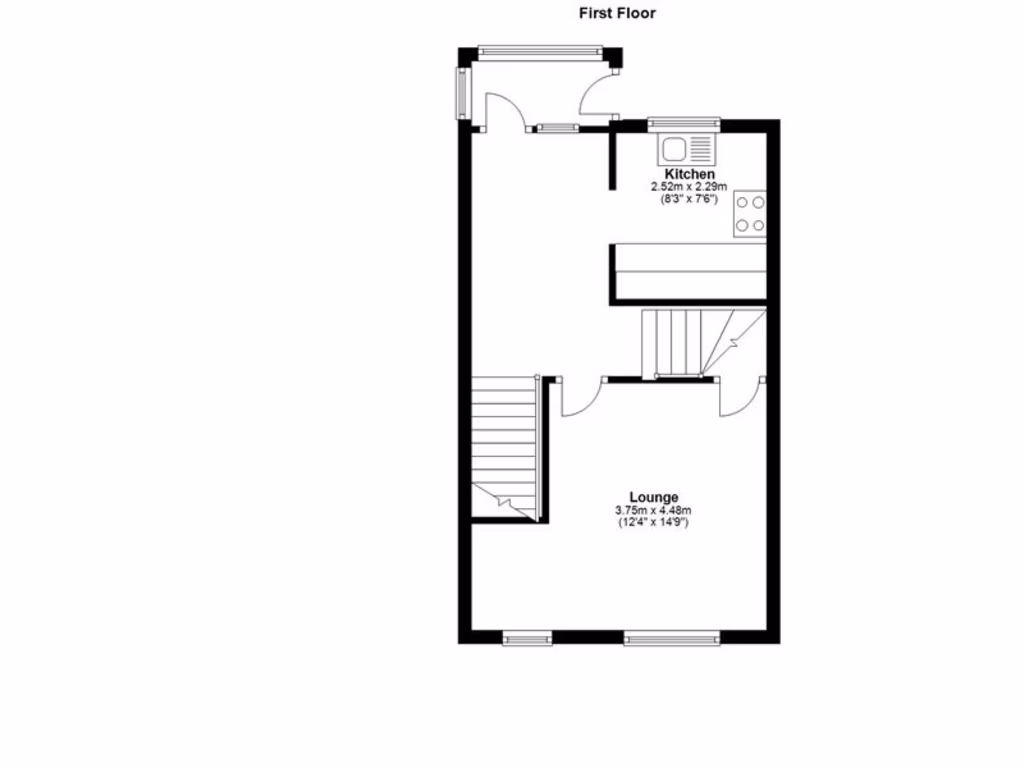
This modern three-story mid-townhouse is perfect for families or professionals looking for convenient urban living in an affluent neighborhood. With a well-designed layout, it features a fitted kitchen, lounge diner on the first floor, and an integrated garage below, maximizing functional space. The second floor boasts two bedrooms and a family bathroom, while the top level includes a private bedroom and shower, offering flexibility for guests or a home office. The enclosed rear garden provides a personal retreat outdoors, ideal for relaxation after a busy day.
Located within reach of several highly-rated primary and secondary schools, this property combines practicality with an excellent community environment. Local amenities, including shops and transport links, are just around the corner, ensuring you won't have to travel far for everyday needs. With a competitive price of £165,000, this townhouse presents an excellent opportunity for buyers seeking both comfort and potential in a popular area. Don’t miss your chance—properties like this in such a prime location don’t last long!
3 bedroom semi-detached house for sale in Saw Mill Way, Burton-on-Trent, DE14 — £215,000 • 3 bed • 2 bath • 1015 ft²
3 bedroom town house for sale in Balata Way, Burton-On-Trent, DE13 — £210,000 • 3 bed • 2 bath • 711 ft²
4 bedroom semi-detached house for sale in St. Matthews Street, Burton-On-Trent, DE14 — £250,000 • 4 bed • 2 bath • 1207 ft²
3 bedroom semi-detached house for sale in Blakeholme Court, Burton-On-Trent, DE14 — £230,000 • 3 bed • 3 bath • 1196 ft²
3 bedroom town house for sale in Blakeholme Court, Burton-On-Trent, DE14 — £190,000 • 3 bed • 2 bath • 893 ft²
3 bedroom terraced house for sale in Evershed Way, Burton-On-Trent, DE14 — £190,000 • 3 bed • 1 bath • 1163 ft²










































































































































