RH13 0QD - 5 bed spacious village family home in Trout Lane, RH13 0QD

View on Property Piper

5 bedroom detached house for sale in Trout Lane, Barns Green, RH13

Summary - 7 TROUT LANE BARNS GREEN HORSHAM RH13 0QD

5 bed 3 bath Detached

Generous garden, flexible living and detached garage near well-regarded schools.
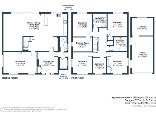
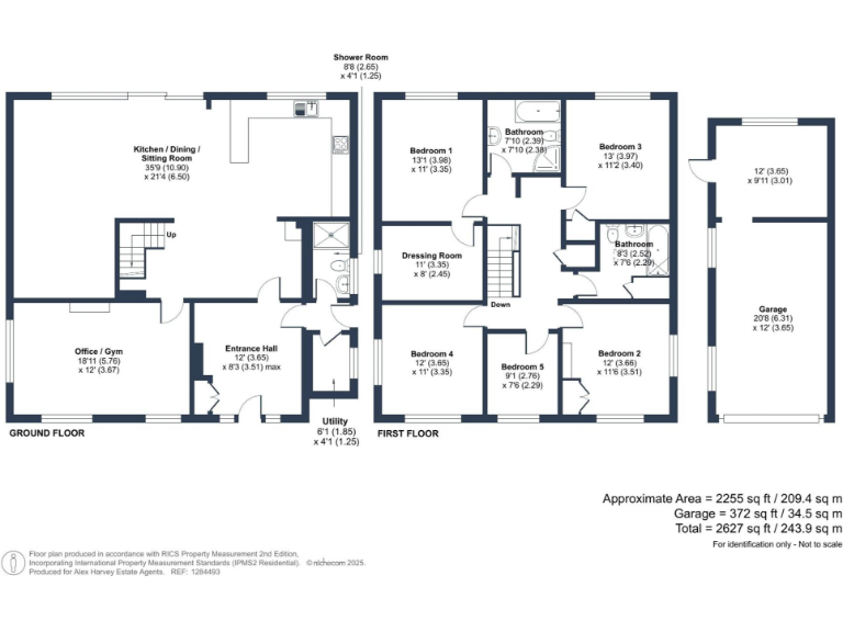
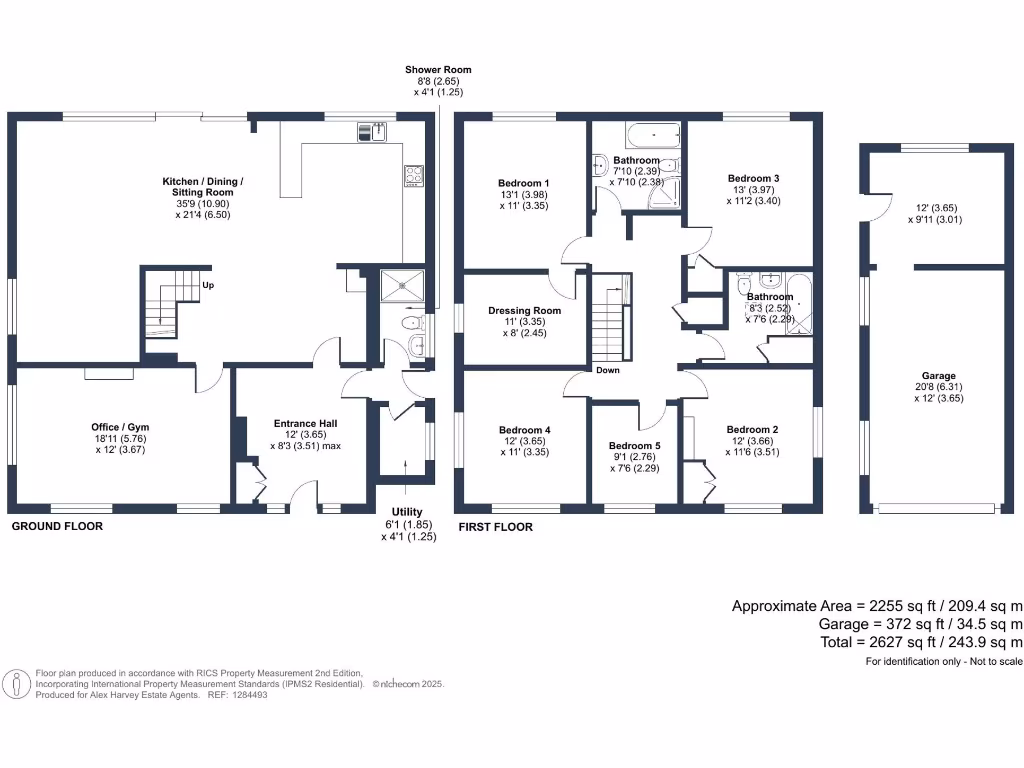
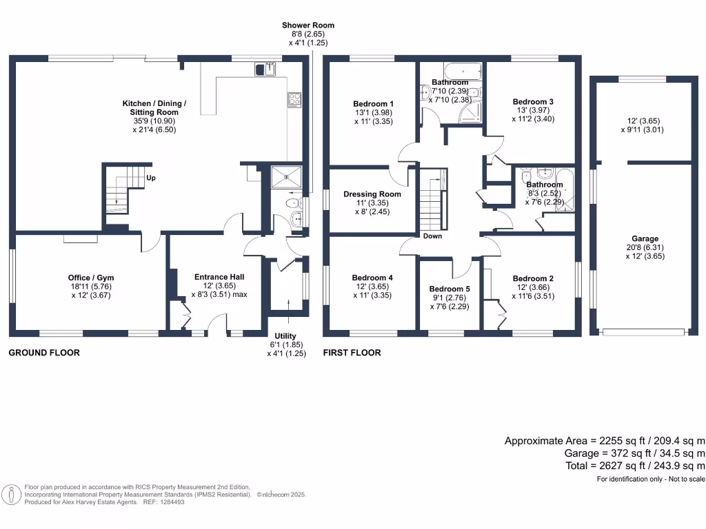
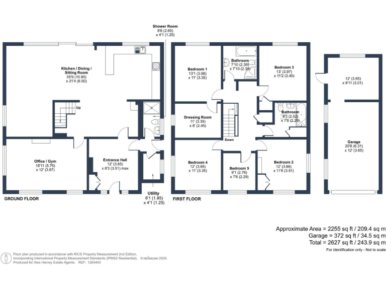
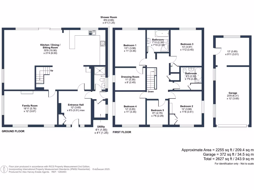
- Five bedrooms and two main bathrooms plus ground-floor shower room
- Open-plan kitchen/dining/sitting room with sliding doors to garden
- Large mature plot of over half an acre with countryside views
- Detached garage with electric door, power and light
- Oil-fired boiler heating; main fuel is oil
- Cavity walls as built, no added insulation (assumed)
- EPC rating D; council tax noted as expensive
- Driveway parking for several vehicles, gated entrance
Set on over half an acre with far-reaching countryside views, this five-bedroom detached house offers generous family living in a peaceful village setting. The ground floor features a double-aspect open-plan kitchen/dining/sitting room with sliding doors to the mature rear garden, plus a separate family room with a log burner and an additional reception currently used as an office/gym. Practical ground-floor utility and shower rooms support busy family life.

Upstairs provides five bedrooms, two bathrooms and a main bedroom with a dressing room, offering flexible sleeping arrangements for children, guests or a home office. The property includes a detached garage with an electric door, driveway parking for several vehicles and a large landscaped garden with patio space for outdoor dining and play.

Important facts: heating is by an oil-fired boiler with radiators and the walls are original cavity without added insulation (assumed). The Energy Performance Certificate is D and council tax is described as expensive. A full survey is recommended to confirm condition and services before purchase.

This home will suit families seeking space, privacy and countryside access, plus anyone wanting scope to update energy efficiency and personalise interiors. Fast broadband and low local crime support remote working and family life in this affluent, village community.

Property Details

Image Descriptions

Floorplan Description

Rooms

Textual Property Features

Target Audience

AI Tags

Detected Visual Features

EPC Details

Nearby Schools

Nearest Bars And Restaurants

,,,,}

Nearest General Shops

,,}

Nearest Grocery shops

,,}

Nearest Supermarkets

,,}

Nearest Religious buildings

,,}

Nearest Medical buildings

,,,}

Nearest Airports

}

Nearest Leisure Facilities

,,,,}

Nearest Tourist attractions

,,}

Nearest Train stations

,,,,}

Nearest Bus stations and stops

,,,,}

Nearest Hotels

,,}

Tags

Local Market Stats

AirBnB Data

Similar Properties

Meta

High Res Images

Compatible Images

Low res Images

Thumbnails

Raw Images

High Res Floorplan Images

Compatible Floorplan Images

Low res Floorplan Images

FloorplanImages Thumbnail

Raw Floorplan Images