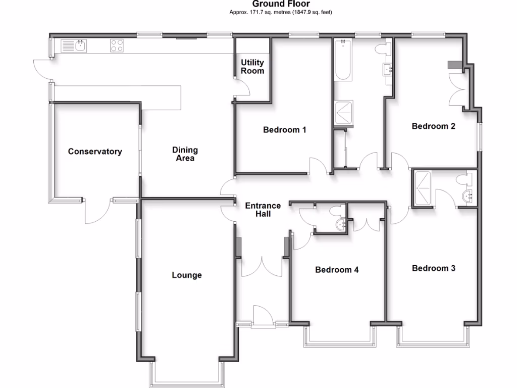
**Standout Features:**
- Spacious detached bungalow with 4 bedrooms and 2 bathrooms
- Large kitchen adjoining a bright conservatory overlooking a beautifully landscaped garden
- Dedicated office space and gym—ideal for remote workers and fitness enthusiasts
- Double garage and ample off-road parking for guests and vehicles
- Located near transport links, shops, and top schools
- Freehold tenure provides ownership security
**Summary:**
Discover a luxurious lifestyle in this stunning four-bedroom detached bungalow, set within beautifully landscaped gardens. The heart of the home features a spacious kitchen seamlessly connected to a light-filled conservatory, perfect for entertaining while enjoying garden views. This thoughtfully designed space also boasts a dedicated office for remote work, and a gym for fitness enthusiasts. With a double garage and ample off-road parking, this property caters to both practical and leisure needs.
Positioned in a tranquil, rural hamlet, yet just a short distance from transport links, shops, and highly-rated schools—making it perfect for families seeking comfort, security, and community. The property offers significant potential for future renovations, giving you the opportunity to personalize and grow into this inviting space. Don't miss out on this exclusive offering, as properties like this rarely stay on the market for long!
4 bedroom bungalow for sale in Reigate Road, Hookwood, Horley, RH6 — £900,000 • 4 bed • 3 bath • 1765 ft²
4 bedroom bungalow for sale in Smallfield Road, Horley, Surrey, RH6 — £725,000 • 4 bed • 3 bath • 1826 ft²
4 bedroom bungalow for sale in Slipshatch Road, Reigate, Surrey, RH2 — £775,000 • 4 bed • 3 bath • 1918 ft²
4 bedroom detached bungalow for sale in Masons Bridge Road, Redhill, Surrey, RH1 — £650,000 • 4 bed • 2 bath • 1938 ft²
4 bedroom bungalow for sale in Weare Street, Ockley, Dorking, Surrey, RH5 — £1,200,000 • 4 bed • 3 bath • 2004 ft²
4 bedroom detached bungalow for sale in Antlands Lane, Shipley Bridge, Horley, Surrey, RH6 — £600,000 • 4 bed • 1 bath • 1152 ft²






















































