Modern family living with garden, garage and efficient heating.
New-build detached with private rear garden
This new-build detached house offers contemporary family living in a peaceful, affluent hamlet setting. The rear of the ground floor features a bright open-plan kitchen-dining room with French doors leading to a private garden, plus a separate utility and cloakroom for everyday practicality. A generous living room sits to the front, creating a clear divide between social and quieter spaces.
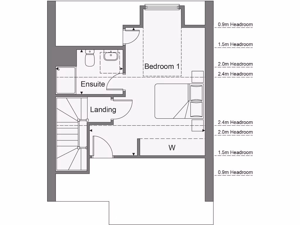
Upstairs delivers three double bedrooms and a family bathroom on the first floor, while the impressive top-floor principal bedroom includes mirrored fitted wardrobes and an ensuite shower room. Practical benefits include a single garage with tandem driveway parking, freehold tenure and an air-source heat pump for efficient heating. Buyers also receive a 10-year Premier warranty and a 2-year warranty for added peace of mind.
Notable considerations: the development estimates a move-in window of March–May 2026, and marketing imagery may be illustrative rather than of this exact build. Broadband speeds in the area are reported as slow, which may affect heavy remote-working or streaming households. Council tax band is to be confirmed.
4 bedroom detached house for sale in Shenley Wood,
Milton Keynes,
Buckinghamshire,
MK5 6LA
, MK5 — £600,000 • 4 bed • 1 bath
5 bedroom detached house for sale in Brooklands, Milton Keynes, Buckinghamshire, MK10 7ES, MK10 — £588,000 • 5 bed • 2 bath • 1453 ft²
4 bedroom detached house for sale in Glen Fields,
Milton Keynes,
MK16 0FE, MK16 — £525,000 • 4 bed • 1 bath • 845 ft²
4 bedroom detached house for sale in Glen Fields,
Milton Keynes,
MK16 0FE, MK16 — £560,000 • 4 bed • 1 bath • 898 ft²
4 bedroom detached house for sale in Stairs Lane, Steeple Claydon, Buckinghamshire, MK18 — £575,000 • 4 bed • 3 bath • 1728 ft²
4 bedroom detached house for sale in Paradine Street, Steeple Claydon, MK18 — £515,000 • 4 bed • 2 bath • 1147 ft²


















































