**Standout Features:**
- Full planning permission for a 3-bedroom chalet-style home.
- Large boat house included.
- Generous 1/4-acre plot (STMS) in a tranquil lakeside setting.
- Potential for holiday let, ideal for water sports enthusiasts.
- Ground works and services already initiated on-site.
**Property Summary:**
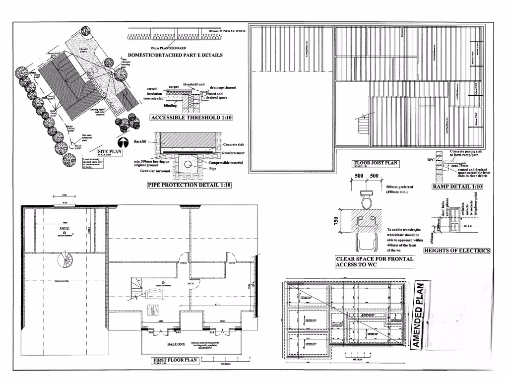
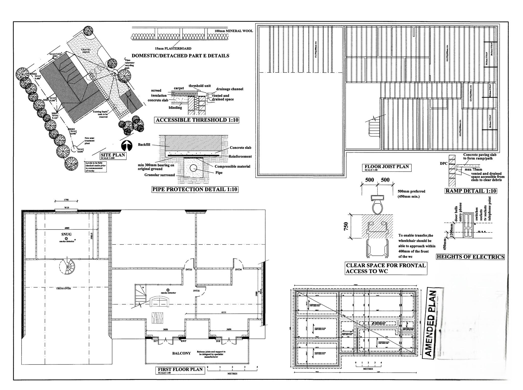
Discover a remarkable opportunity to create your dream getaway or holiday rental in the sought-after Pentney Lakes Holiday and Leisure Park. This 1/4-acre plot comes with full planning permission to build a spacious three-bedroom detached chalet-style home, featuring an inviting open plan living space and a sizable two-floor boat house perfect for storing your water sports equipment. The groundwork is already completed, with key services such as water, electricity, and septic system in place, facilitating a smoother construction process.
Embrace the serene lifestyle that this scenic location offers, surrounded by lush woodlands and tranquil lakes, making it a haven for nature lovers. With easy access to the charming town of King's Lynn and the stunning Norfolk coast just a short drive away, this property is not just a place to live but an escape into a world of leisure and adventure. The annual maintenance charge of £3,178.18 ensures the tranquility and upkeep of this idyllic community, making this a genuine investment in relaxation and recreation. Don’t miss out on this exclusive chance to secure a parcel of land with such significant potential—opportunities like this are rare and won't last long!
3 bedroom lodge for sale in Common Road, Pentney, King's Lynn, PE32 — £275,000 • 3 bed • 2 bath • 984 ft²
3 bedroom detached house for sale in Common Road, Pentney, PE32 — £220,000 • 3 bed • 1 bath • 1270 ft²
3 bedroom detached bungalow for sale in Common Road, Pentney, PE32 — £325,000 • 3 bed • 2 bath • 1575 ft²
3 bedroom lodge for sale in Pentney, PE32 — £450,000 • 3 bed • 2 bath • 1508 ft²
4 bedroom lodge for sale in Common Road, Pentney, King's Lynn, PE32 — £300,000 • 4 bed • 4 bath • 533 ft²
2 bedroom park home for sale in Common Road, Pentney, King's Lynn, PE32 — £125,000 • 2 bed • 2 bath • 539 ft²


















































