Low running costs and strong rental potential — cash buyers only due to lease length.
Cash buyers only due to short lease of about 62 years
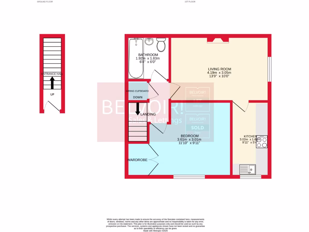
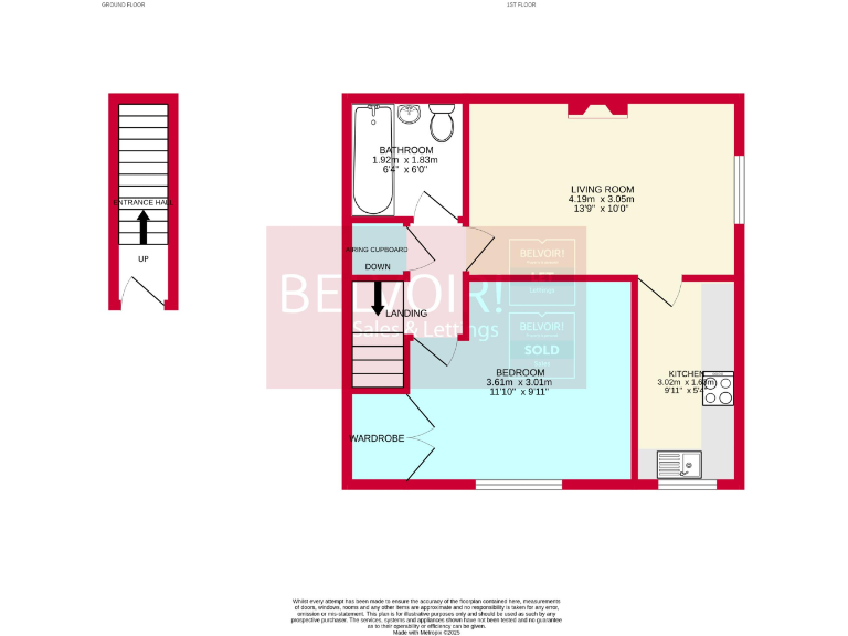
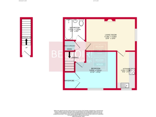
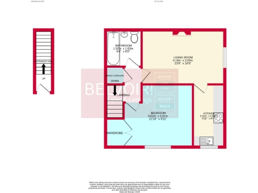
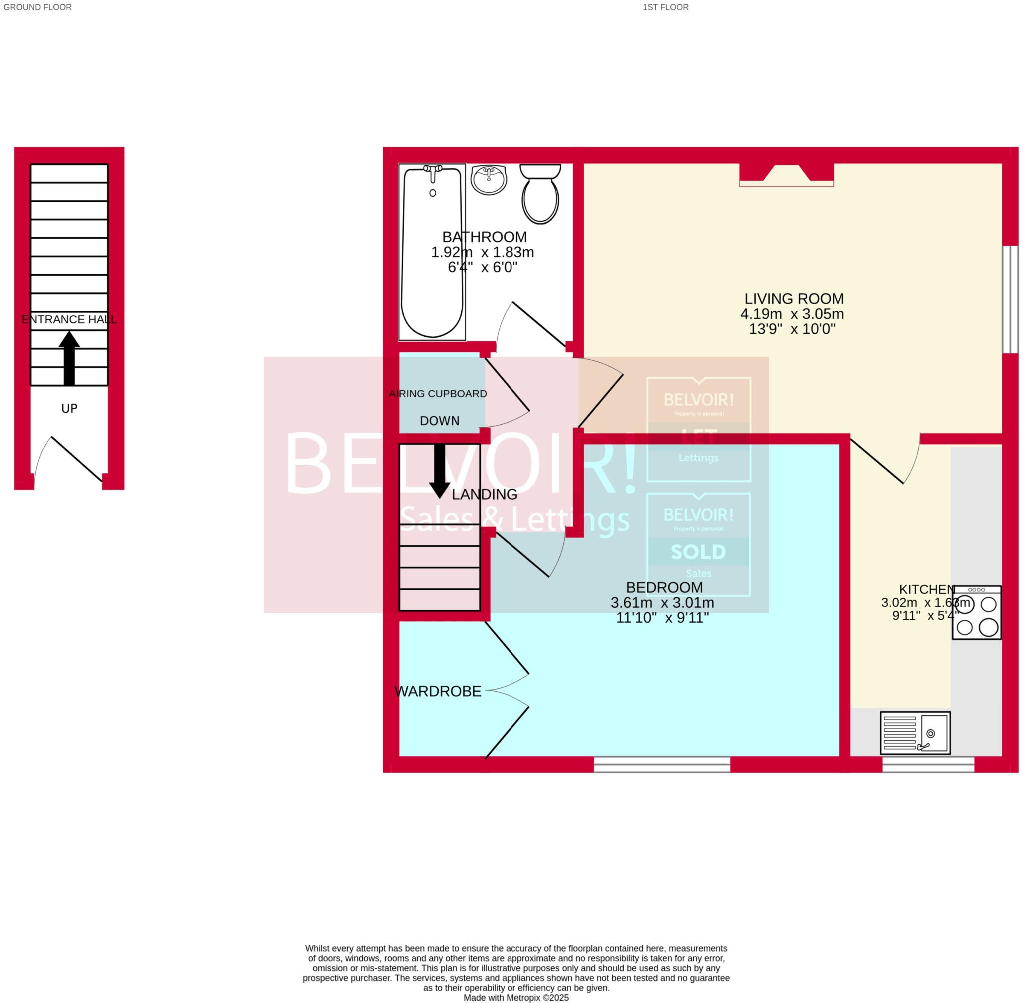
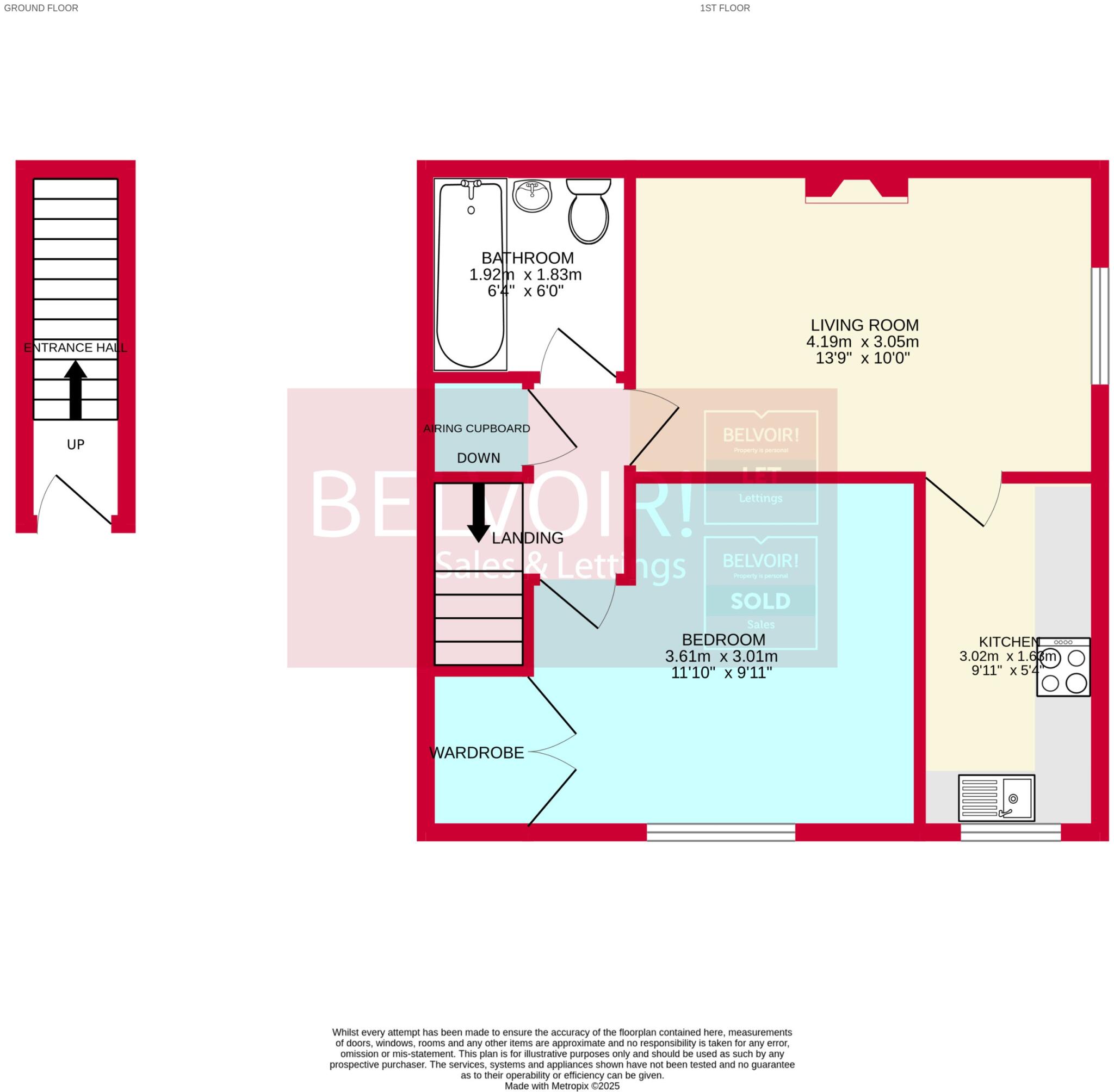
A compact one-bedroom first-floor maisonette on Sidon Hill Way offering a low-cost, easy-to-manage investment in Hawks Green. The property has a private entrance, generous room proportions for its size, built-in storage and a loft for extra space. There is rear parking and the location sits close to schools, shops, bus links and Cannock town centre.
This is aimed at cash purchasers because the lease has approximately 62 years remaining (expiry 1 Jan 2088). Ground rent is modest at £75 per annum and there is no service charge, which keeps ongoing costs unusually low and supports strong rental yield potential. The current market rental estimate of around £725pcm indicates attractive returns for a small outlay.
The flat is well-presented but has a D EPC and shows signs of cosmetic ageing consistent with a 1980s build. The short lease is the main material drawback: buyers should factor in the cost and process of a lease extension or the possibility that mortgage lenders will not offer standard residential lending. Vacant possession and no upward chain make a quick transaction possible for a cash buyer.
Overall this maisonette suits an investor seeking a straightforward, low-running-cost buy-to-let with immediate rental potential, or a buyer prepared to extend the lease and improve the property cosmetically to add value.
1 bedroom apartment for sale in St. Johns Road, Cannock, Staffordshire, WS11 — £95,000 • 1 bed • 1 bath • 442 ft²
1 bedroom flat for sale in Oxford Green, Cannock Town Centre, Cannock, WS11 — £89,950 • 1 bed • 1 bath
2 bedroom flat for sale in Greenslade Grove, Hednesford, Cannock, WS12 1QR, WS12 — £110,000 • 2 bed • 1 bath • 434 ft²
1 bedroom maisonette for sale in Bluebell Close, Hednesford, Cannock, WS12 — £110,000 • 1 bed • 1 bath • 614 ft²
1 bedroom maisonette for sale in Cannock Wood Street, Hazelslade, WS12 — £125,000 • 1 bed • 1 bath • 567 ft²
1 bedroom flat for sale in Rembrandt Close, Heath Hayes, Cannock, WS11 7GW, WS11 — £85,000 • 1 bed • 1 bath • 362 ft²














































