Chain-free, renovated three-bed near mainline station — ideal first home or commuter base.
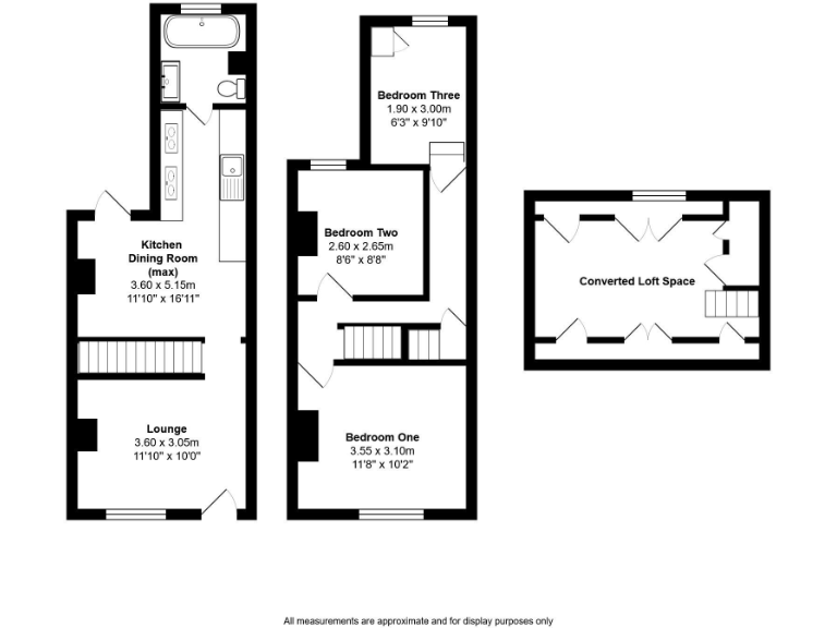
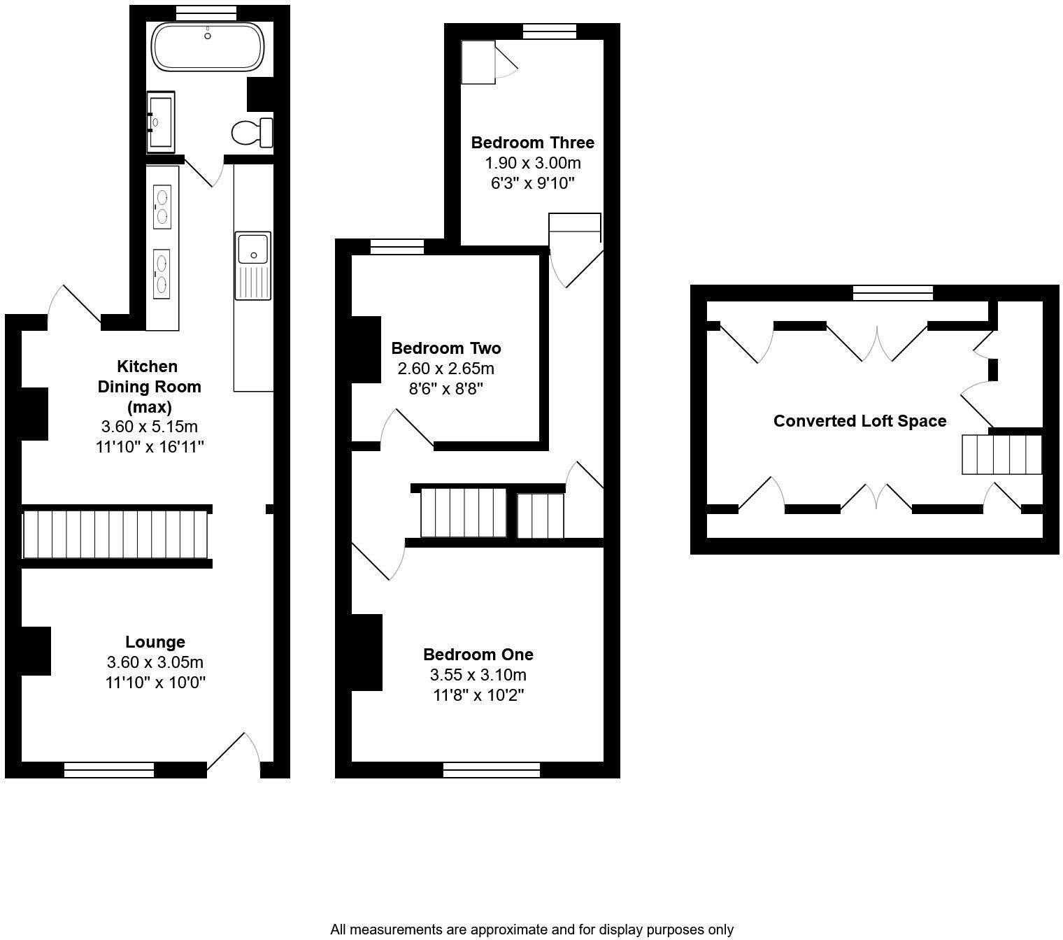
Three bedrooms plus converted loft space
A freshly modernised Victorian terrace offered chain-free and ready to move into — ideal for a first-time buyer or investor seeking a low-maintenance city base. The ground floor presents a bright lounge, an open kitchen/dining room with direct access to a small courtyard garden, and a contemporary family bathroom with a freestanding bath. Upstairs are three reconfigured bedrooms and stairs to a useful converted loft room for a home office, dressing area or play space.
The house has been completed to a high standard with new fittings, double glazing and gas central heating, so major immediate works are unlikely. Its compact 571 sq ft footprint and courtyard garden make for easy upkeep and a practical urban home. The property is close to local amenities and the mainline station with direct links to Cambridge and London — a strong commuting advantage.
Buyers should note a few material considerations: the plot and rooms are small, there is only one bathroom, and the wider area records higher-than-average crime and significant local deprivation. The EPC is not yet available and prospective purchasers are advised to commission surveys and checks. Council Tax band is low, which helps running costs.
Overall this is a well-presented, move-in-ready terrace that suits first-time buyers wanting commuter convenience and low maintenance, or investors seeking a compact rental in a central location. Viewings recommended to appreciate the finish and efficient layout in person.
3 bedroom terraced house for sale in Cresswell Street, King's Lynn, Norfolk, PE30 — £145,000 • 3 bed • 1 bath • 645 ft²
3 bedroom terraced house for sale in Archdale Street, King's Lynn, PE30 — £160,000 • 3 bed • 1 bath • 756 ft²
2 bedroom terraced house for sale in Birchwood Street, King's Lynn, PE30 — £120,000 • 2 bed • 1 bath • 694 ft²
3 bedroom semi-detached house for sale in Gaywood Road, King's Lynn, PE30 — £210,000 • 3 bed • 1 bath • 941 ft²
3 bedroom terraced house for sale in Garden Court, King's Lynn, Norfolk, PE30 — £170,000 • 3 bed • 1 bath • 1107 ft²
3 bedroom terraced house for sale in Ethel Terrace, King's Lynn, PE30 — £179,995 • 3 bed • 1 bath • 801 ft²






















































































