GU21 2PN - 3 bedroom semidetached house for sale in Highclere Road, Kn…

View on Property Piper

3 bedroom semi-detached house for sale in Highclere Road, Knaphill, Woking, Surrey, GU21

Summary - 4A HIGHCLERE ROAD KNAPHILL WOKING GU21 2PN

3 bed 1 bath Semi-Detached

**Standout Features:**
- Charming 1930s semi-detached property with bay windows
- Open-plan living with modern kitchen/dining area
- Three well-sized bedrooms plus a versatile bonus loft room
- Landscaped rear garden, perfect for outdoor relaxation
- Driveway with parking for two cars
- Chain-free sale for a quicker purchase process
- Located within walking distance to Knaphill village amenities

**Potential Concerns:**
- Crime rate above average in the area
- Established cavity walls with assumed lack of insulation

Step into this delightful semi-detached 3-bedroom family home, perfectly blending timeless 1930s charm and modern convenience. The bright open-plan living space, enhanced by a spacious lounge with a picturesque bay window, invites both comfort and entertainment. The beautifully appointed kitchen/dining area features stylish shaker units and direct access to a beautifully landscaped rear garden—a serene haven for summer gatherings and relaxation.

Upstairs, discover three generously-sized bedrooms sharing an elegant modern bathroom, along with a bonus loft room that opens up a world of possibilities—ideal for a home office, playroom, or extra storage. Additional perks include off-street parking for two cars and a sought-after location just a short stroll from Knaphill village, which boasts a vibrant selection of shops, eateries, and excellent local schools.

This affordable gem offers immense potential for family living in a community-focused neighborhood. Don’t delay—properties of this caliber don’t stay on the market for long!

Property Details

Brochure Descriptions

Image Descriptions

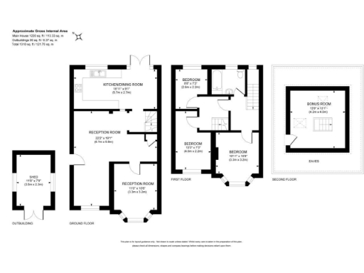
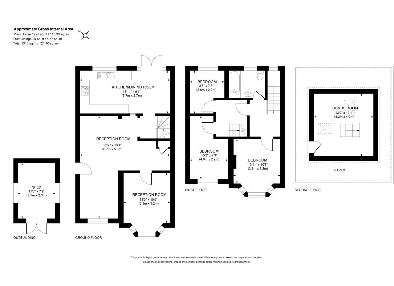
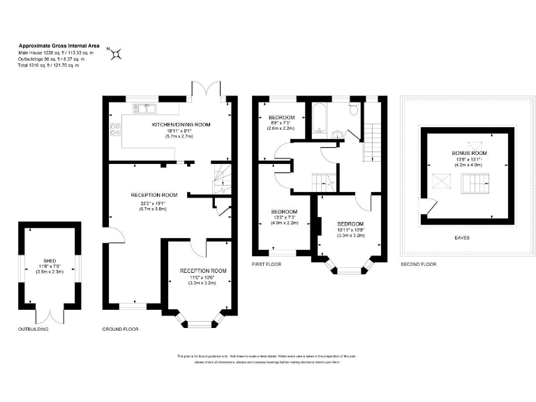
Floorplan Description

Rooms

Textual Property Features

Detected Visual Features

EPC Details

Nearby Schools

Nearest Bars And Restaurants

,,,,}

Nearest General Shops

,,}

Nearest Grocery shops

,,}

Nearest Supermarkets

,,}

Nearest Religious buildings

,,}

Nearest Medical buildings

,,,}

Nearest Airports

,}

Nearest Leisure Facilities

,,,,}

Nearest Tourist attractions

,,}

Nearest Train stations

,,,,}

Nearest Bus stations and stops

,,,,}

Nearest Hotels

,,}

Tags

Local Market Stats

Similar Properties

Meta

High Res Images

Compatible Images

Low res Images

Thumbnails

Raw Images

High Res Floorplan Images

Compatible Floorplan Images

Low res Floorplan Images

FloorplanImages Thumbnail

Raw Floorplan Images