Large plot, high-spec finishes and private gated setting ideal for growing families.
Newly built detached family home over three floors, over 3,000 sq ft
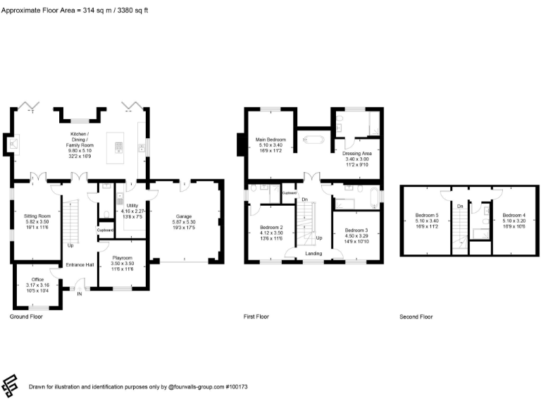
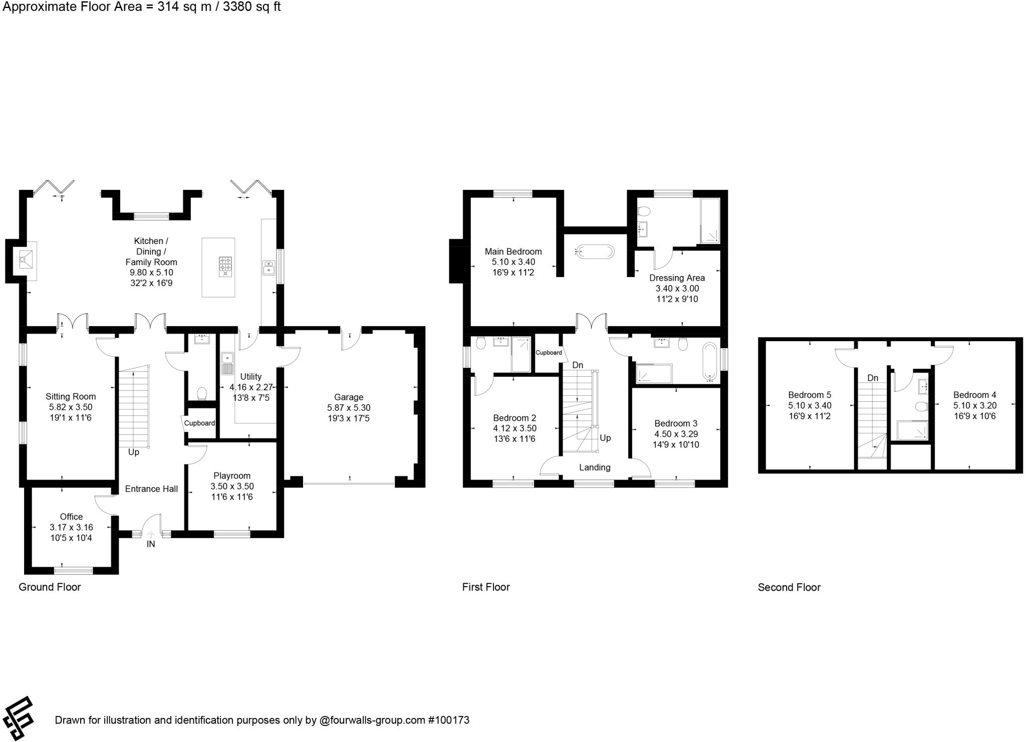
A substantial newly built family home arranged over three floors, finished to a high specification and set in a very large private plot with open countryside views. The house delivers over 3,000 sq ft of flexible living space including a generous open-plan kitchen/living/dining area that opens onto a raised terrace, separate sitting/cinema room, home office and playroom — practical for family life and entertaining.
The principal suite is impressively proportioned with dressing area, freestanding bath and en suite; four further double bedrooms (one en suite) and two family bathrooms provide comfortable accommodation for older children or regular guests. Practical touches include a large utility with direct access to the double garage, paved parking, EV charging point and a 10-year builders’ warranty.
Sustainability features are prominent: air source heat pump with electric underfloor heating on the ground floor reduces reliance on fossil fuels and offers consistent comfort. The setting behind electric gates adds privacy and the development backs onto farmland for a quiet, rural aspect while remaining within easy reach of Gloucester and Cheltenham.
Important considerations: broadband speeds in the area are very slow, which may affect home-working or streaming without a separate solution. Heating is electric via air source heat pump (unspecified tariff) — efficient but dependent on electricity costs. The property sits in a small exclusive enclave and is delivered as a new build, so buyers should allow for landscaping maturing and standard new-build settling issues.
5 bedroom detached house for sale in Main Road, Minsterworth, Gloucester, GL2 — £685,000 • 5 bed • 2 bath • 2191 ft²
5 bedroom house for sale in Highland Place, Minsterworth, Gloucester, GL2 — £650,000 • 5 bed • 3 bath • 2191 ft²
5 bedroom detached house for sale in Seven Acres Close, Main Road, Minsterworth, Gloucester, GL2 — £775,000 • 5 bed • 3 bath • 3100 ft²
5 bedroom detached house for sale in Seven Acres Close, Main Road, Minsterworth, Gloucester, GL2 — £800,000 • 5 bed • 4 bath • 3118 ft²
5 bedroom detached house for sale in Highland Place, Minsterworth, Gloucester, GL2 8JH, GL2 — £650,000 • 5 bed • 3 bath • 2070 ft²
6 bedroom detached house for sale in Seven Acres Close, Main Road, Minsterworth, Gloucester, GL2 — £800,000 • 6 bed • 4 bath • 3177 ft²


































































