Comfortable three‑storey house with garden near transport and schools.
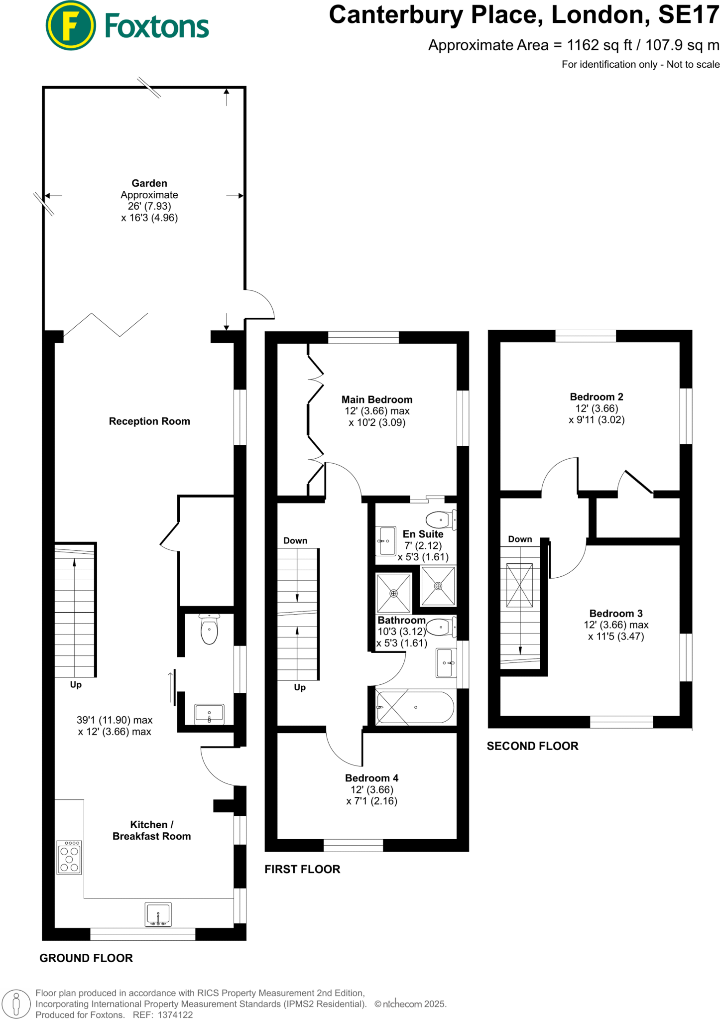
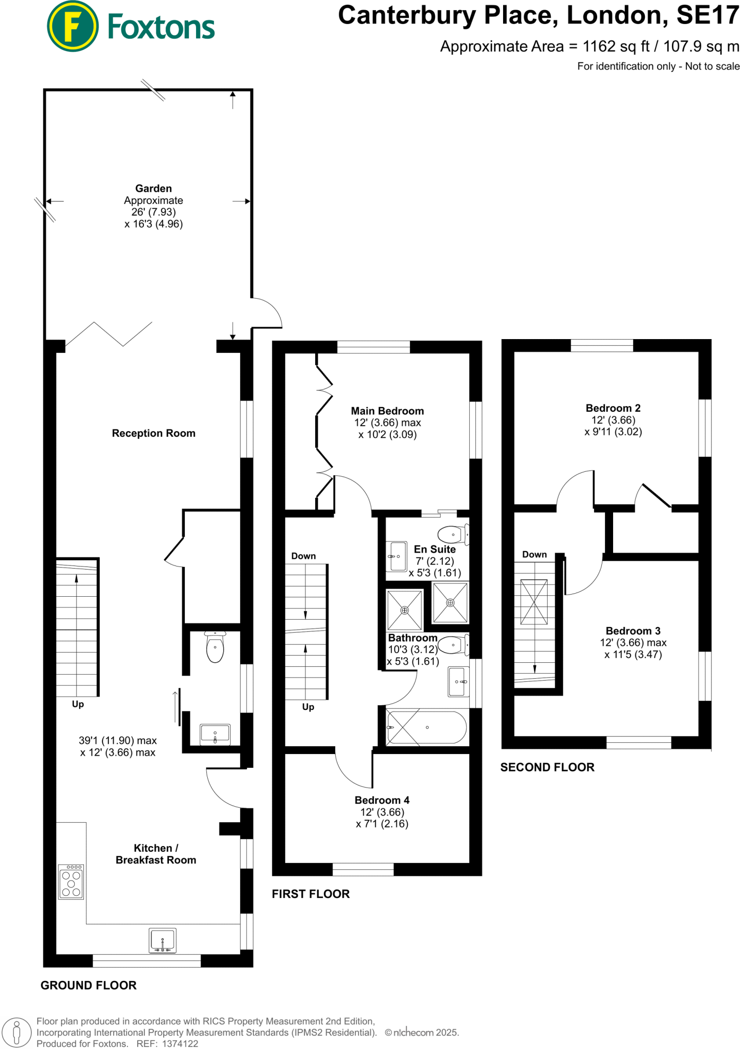
4 bedrooms over three floors with main ensuite shower room
This well-proportioned four-bedroom terraced house is arranged over three floors, offering a generous reception room, a sleek fitted kitchen with integrated appliances and a private rear garden ideal for family life and entertaining. The main bedroom includes an ensuite shower room and there is a separate three-piece bathroom, giving useful flexibility for a growing household. At about 1,162 sq ft the layout feels roomy without being overwhelming.
Set in an established residential pocket close to Elephant and Castle, the location brings excellent transport links, plentiful local shops and leisure amenities within easy reach. Several well-regarded primary and secondary schools are nearby, including an Outstanding primary (Crampton Primary), making the house practical for families. Broadband speeds and mobile signal are strong, supporting home working and streaming.
Practical facts to note: the property was constructed in the late 1970s–early 1980s, has cavity walls with assumed partial insulation, and uses a mains gas community heating scheme. These features are typical of the era and may limit thermal performance compared with newer builds — consider improvement works if long-term energy efficiency is a priority. Crime levels in the immediate area are above average; buyers should weigh this against the strong transport links and local amenities.
Offered freehold with very low flood risk, the house presents a comfortable ready-to-live-in home with scope to update finishes or improve insulation for better running costs and comfort. Its size, garden and location make it suitable for families wanting space close to central London or for investors seeking a consistent rental market in a busy part of the city.
4 bedroom terraced house for sale in Langdale Close, Pelier Street, Walworth, London, SE17 — £650,000 • 4 bed • 1 bath • 1109 ft²
3 bedroom flat for sale in Wansey Street, Elephant and Castle, London, SE17 — £1,100,000 • 3 bed • 2 bath • 1202 ft²
3 bedroom flat for sale in Heygate Street, Elephant and Castle, London, SE17 — £1,250,000 • 3 bed • 3 bath • 1374 ft²
4 bedroom terraced house for sale in Henshaw Street, London, SE17 — £875,000 • 4 bed • 2 bath • 1168 ft²
3 bedroom flat for sale in Larcom Street, Elephant and Castle, London, SE17 — £725,000 • 3 bed • 1 bath • 907 ft²
4 bedroom town house for sale in Henshaw Street, London, Greater London, SE17 — £895,000 • 4 bed • 2 bath • 1108 ft²










































































































































































