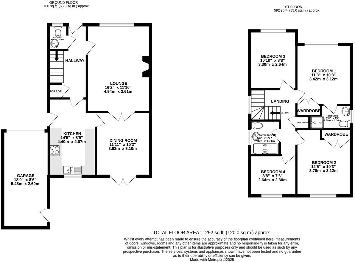
Contemporary four-bedroom house in desirable Rainham for family life and easy commuting.
Excellent local schools within short distance
Kutchenhaus kitchen with integrated AEG appliances
Four double bedrooms, principal with ensuite
Landscaped rear garden with awning and patios
Driveway for two cars plus integral single garage
Modest plot and moderate garden privacy from neighbours
Built 1976–1982; cavity walls with assumed partial insulation
Double glazing present; install date unknown
This well-presented four-bedroom detached house on Silverspot Close suits a growing family seeking move-in-ready accommodation in a popular Rainham neighbourhood. The ground floor offers a contemporary living layout with French doors to a landscaped rear garden and a fitted Kutchenhaus kitchen with integrated AEG appliances.
Upstairs are four double bedrooms, two with fitted wardrobes and a principal ensuite, plus a modern family shower room. Practical features include a private driveway for two cars and an integral single garage, plus mains gas central heating and double glazing (install date unknown).
The rear garden is landscaped with lawn, two patio areas and a fitted awning for outdoor dining. The plot is modest and houses sit close to neighbouring properties, so privacy is moderate rather than generous. The property was built in the late 1970s–early 1980s and has cavity walls with assumed partial insulation, so buyers seeking high thermal performance should check insulation levels and services.
Location is a strong selling point: low local crime, excellent mobile signal and fast broadband, with good primary and secondary schools nearby and a convenient cut-through to Rainham station (around a 10-minute walk). There is no flood risk recorded for this postcode.
3 bedroom semi-detached house for sale in Silverspot Close, Rainham, Gillingham, ME8 — £375,000 • 3 bed • 1 bath • 965 ft²
4 bedroom detached house for sale in Lower Rainham Road, Rainham, Gillingham, ME8 — £650,000 • 4 bed • 2 bath • 1974 ft²
3 bedroom semi-detached house for sale in Stratford Avenue, Rainham, Gillingham, ME8 — £350,000 • 3 bed • 1 bath • 1177 ft²
4 bedroom detached house for sale in Harvesters Close, Rainham, ME8 — £600,000 • 4 bed • 3 bath • 1766 ft²
4 bedroom terraced house for sale in Warlingham Close, Rainham, ME8 — £300,000 • 4 bed • 1 bath • 904 ft²
4 bedroom detached house for sale in Birling Avenue, Rainham, Gillingham, ME8 — £600,000 • 4 bed • 2 bath • 1454 ft²


























































