CF48 4QL - 1 bedroom end of terrace house for sale in 16A Aberfan Road…

View on Property Piper

1 bedroom end of terrace house for sale in 16A Aberfan Road, Aberfan, Merthyr Tydfil, Merthyr Tydfil, CF48 4QL, CF48

Summary - 15a, Albert Street,PENTRE,CF41 7JX CF48 4QL

1 bed 1 bath End of Terrace

Ready-to-let or move-in one-bedroom near Bike Park Wales and national park access..
- Newly renovated: rewired, replastered, new floor coverings
- Modern fitted kitchen and bathroom, UPVC double glazing
- Freehold end-of-terrace, advertised for online auction (Lot 44)
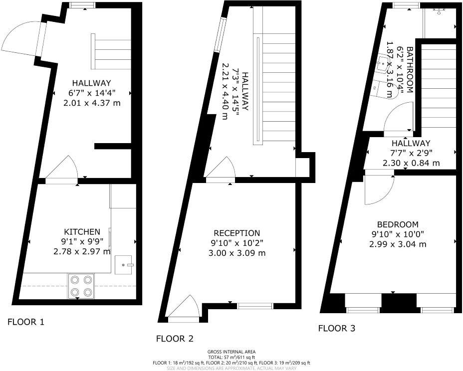
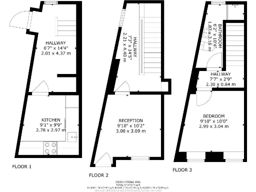
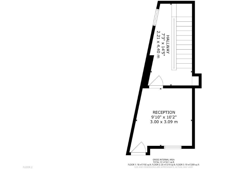
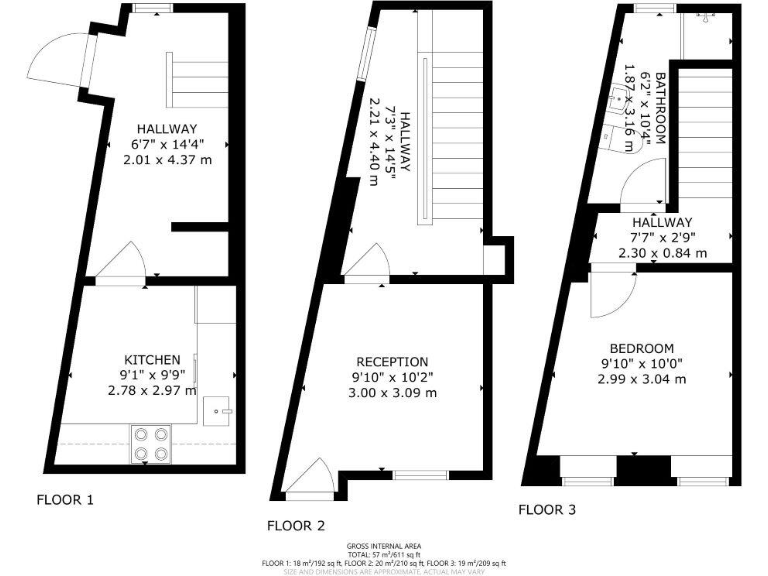
- Approx 611 sq ft; one bedroom, best for single/couple
- Potential rent £600–£650 pcm (guidance only)
- Gas central heating present but not tested — verify
- Located in a very deprived area; local renter profile noted
- Fast broadband and excellent mobile signal; good transport links
A recently upgraded one-bedroom end-of-terrace offered freehold and sold via online auction (Lot 44). The property has been rewired, replastered and fitted with new floor coverings, a modern kitchen and bathroom, plus UPVC double glazing. At about 611 sq ft the layout includes an entrance lounge, lower-ground hallway with kitchen access to the rear garden, and first-floor bedroom and bathroom.

The house is presented ready to occupy or let and is promoted with potential rental guidance of £600–£650 pcm. It sits close to local amenities and transport links, and is near Bike Park Wales and the Bannau Brycheiniog National Park, which may appeal to short-let or tourist rental demand. Broadband speeds are reported fast and mobile signal excellent.

Important considerations: the property is in a very deprived area and described as part of endeavouring social-renter neighbourhoods, which may affect long-term capital growth and tenant demand. Gas central heating is present but is noted as not tested. The home is small and best suited to a single occupant, couple, first-time buyer, or landlord seeking a compact letting opportunity.

Sold at auction, buyers should allow time for legal checks and verification of tenure (advised freehold). The sale is offered with vacant possession, though it could be let immediately if required. Expect straightforward maintenance given recent refurbishment, but budget for routine upkeep and confirm services (heating, electrics) via survey prior to completion.

Property Details

Image Descriptions

Floorplan Description

Rooms

Textual Property Features

Target Audience

AI Tags

Detected Visual Features

Nearest Bars And Restaurants

,,,,}

Nearest General Shops

,,}

Nearest Grocery shops

,,}

Nearest Supermarkets

,,}

Nearest Religious buildings

,,}

Nearest Medical buildings

,,,}

Nearest Leisure Facilities

,,,,}

Nearest Tourist attractions

,,}

Nearest Train stations

,,,,}

Nearest Bus stations and stops

,,,,}

Nearest Hotels

,,}

Tags

Local Market Stats

AirBnB Data

Similar Properties

Meta

High Res Images

Compatible Images

Low res Images

Thumbnails

Raw Images

High Res Floorplan Images

Compatible Floorplan Images

Low res Floorplan Images

FloorplanImages Thumbnail

Raw Floorplan Images