Sunny garden and garage; ideal family refurbishment project near schools and transport.
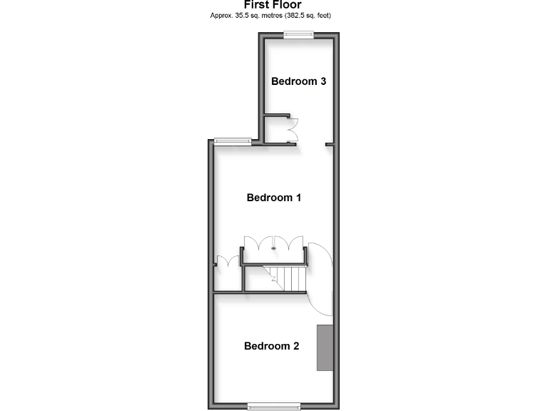
Three bedrooms, third leads from bedroom one (limited privacy)
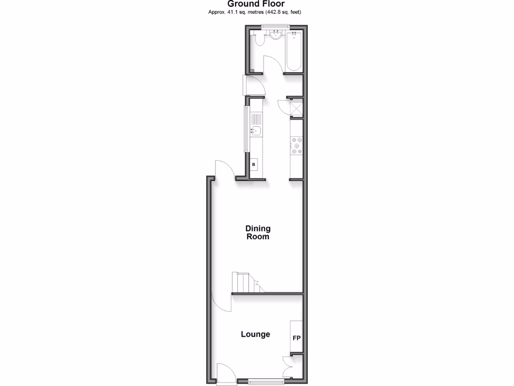
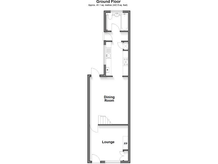
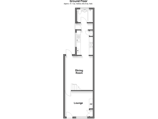
This mid-terraced family home on New Hythe Lane offers comfortable, well-proportioned living across an 829 sq ft footprint. The lounge with wooden floor and cosy fireplace and a separate dining room with garden views create classic living spaces for everyday family life and entertaining. A private, sunny rear garden and a handy rear garage add outdoor space and practical storage.
The layout includes three bedrooms, with the third accessed through bedroom 1 — useful as a dressing room or nursery but limiting privacy. The property dates from before 1900 and has solid brick walls with no known cavity insulation, so modern energy upgrades may be needed. Double glazing is fitted, but the install date is unknown.
Practical advantages include mains gas central heating via boiler and radiators, freehold tenure, low council tax and excellent local amenities: good-rated primary and secondary schools nearby, Larkfield Leisure Centre and Leybourne Lakes within easy reach, plus strong road and rail commuter links. The house is well placed for local shops, bus services and everyday conveniences.
This is a sensible purchase for a growing family or buyer seeking a character home with scope to refresh and improve. Mechanical and cosmetic updating are likely to add value, and the garage and garden are genuine strengths for family life.
2 bedroom terraced house for sale in Keats Road, Larkfield, Aylesford, Kent, ME20 — £300,000 • 2 bed • 1 bath • 1120 ft²
3 bedroom terraced house for sale in Woodlea, Leybourne, West Malling, Kent, ME19 — £375,000 • 3 bed • 1 bath • 570 ft²
3 bedroom semi-detached house for sale in Eden Avenue, Chatham, Kent, ME5 — £375,000 • 3 bed • 1 bath • 829 ft²
3 bedroom semi-detached house for sale in New Hythe Lane, Larkfield, Aylesford, ME20 — £550,000 • 3 bed • 2 bath • 1070 ft²
3 bedroom terraced house for sale in Apple Close, Snodland, Kent, ME6 — £325,000 • 3 bed • 1 bath • 627 ft²
3 bedroom terraced house for sale in Lancashire Road, Maidstone, Kent, ME15 — £325,000 • 3 bed • 1 bath • 770 ft²


















































