Bright family layout with garage, garden and scope to improve energy performance.
- Extended kitchen-diner with direct garden access
- Bay-front lounge and flexible second reception room
- Detached garage with power and off-street driveway parking
- Private rear garden with patio and lawn, fenced for privacy
- Solid brick construction; assumed no wall insulation
- EPC band E; potential for energy-efficiency upgrades
- Local crime level recorded as very high
- Mixed Ofsted ratings at nearby state primary schools
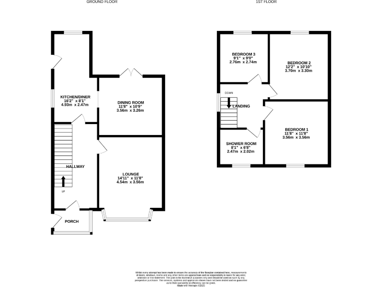
This extended three-bedroom semi-detached house in Littleover offers practical family living across two floors, with a bright bay-front lounge and a spacious extended kitchen-diner that opens onto a private rear garden. The layout includes a flexible second reception room ideal for dining, play or a home office, plus a detached garage with power and lighting and off-street driveway parking.
The property is double glazed with gas central heating and is described in good condition throughout, ready to occupy. The rear garden combines a paved patio with a lawned area enclosed by fencing, providing a secure space for children and pets. Total internal area is approximately 833 sq ft, suited to growing families or first-time buyers aiming for a sensible move.
Notable negatives to consider: the home dates from c.1900–1929 and has solid brick walls assumed to have no insulation, which may affect running costs. The current Energy Performance Certificate is band E. Local crime levels are recorded as very high; buyers should satisfy themselves on security and insurance implications. Nearby state primary schools have mixed Ofsted outcomes, though there are well-regarded independent and secondary options close by.
Overall this is a practical, well-proportioned family home in a sought-after Littleover location with easy access to amenities and transport. It offers immediate liveability with straightforward potential to improve energy efficiency and modernise finishes to add value.
3 bedroom semi-detached house for sale in Wade Avenue, Derby, DE23 — £299,950 • 3 bed • 1 bath • 1086 ft²
3 bedroom semi-detached house for sale in Gayton Avenue, Littleover, Derby, DE23 — £270,000 • 3 bed • 2 bath • 833 ft²
3 bedroom semi-detached house for sale in Melton Avenue, Littleover, DE23 — £270,000 • 3 bed • 1 bath • 854 ft²
3 bedroom semi-detached house for sale in Stenson Road, Littleover, DE23 — £240,000 • 3 bed • 1 bath • 873 ft²
3 bedroom semi-detached house for sale in West View Avenue, Littleover, DE23 — £300,000 • 3 bed • 1 bath • 958 ft²
3 bedroom detached house for sale in Blagreaves Lane, Littleover, DE23 — £330,000 • 3 bed • 1 bath • 1001 ft²


















































































