Large garden, garage and flexible family living near transport links.
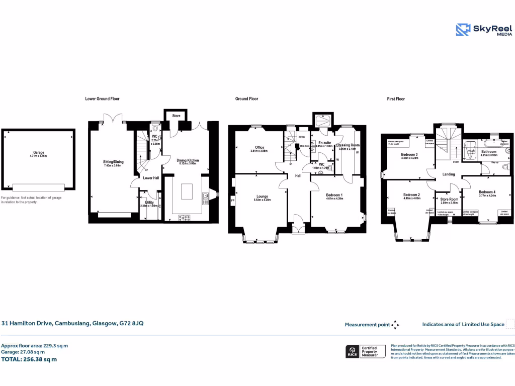
Large detached villa over three levels, generous 2,467 sqft
A substantial four-bedroom detached villa arranged over three levels, this well-updated home suits a growing family wanting space and flexibility. Recent improvements and contemporary finishes combine with period features such as bay windows, cornicing and a stone facade to give character alongside practical modern living.
Ground and garden levels provide generous reception rooms including a bay-front lounge with wood-burning stove, a dining-sized fitted kitchen with granite worktops and integrated appliances, plus a versatile office that could serve as a fifth bedroom. The upper floor houses three further double bedrooms and a family bathroom; the principal suite features a dressing room and a tiled en-suite.
Externally the property offers a large monobloc driveway, detached garage and extensive, well-kept front and rear gardens with patio and decking — ideal for family outdoor living and entertaining. Travel and connectivity are strong: a short walk to the train station, quick M74 access and excellent mobile and fast broadband speeds.
Important practical points: the house is Freehold but sits in a ward marked as very deprived, the council tax band is high and the EPC rating is D. These are factual considerations for running costs and future energy work. Overall this is a roomy, flexible family home with significant outdoor space and scope for further improvement or adaptation.
4 bedroom detached house for sale in Greenlees Road, Cambuslang, Glasgow, G72 — £475,000 • 4 bed • 2 bath • 1910 ft²
4 bedroom detached house for sale in Old Coach Road, East Mains, East Kilbride, South Lanarkshire, G74 — £500,000 • 4 bed • 3 bath • 2578 ft²
4 bedroom detached house for sale in 11 Brookfield Drive, Robroyston, Glasgow, G33 — £299,000 • 4 bed • 3 bath • 2257 ft²
4 bedroom semi-detached house for sale in 24 Wellshot Drive, Cambuslang, Glasgow, G72 — £495,000 • 4 bed • 2 bath • 2196 ft²
4 bedroom detached house for sale in 39 Quarry Avenue, Cambuslang, , Glasgow, G72 — £310,000 • 4 bed • 2 bath • 1292 ft²
4 bedroom semi-detached house for sale in 11 Rodger Drive, Rutherglen, Glasgow, G73 — £425,000 • 4 bed • 2 bath • 1389 ft²


























































































































































































































































