Low-cost three-bedroom unit ideal for holiday lets or affordable seaside retreats.
Low asking price £30,000—affordable entry to park-home ownership
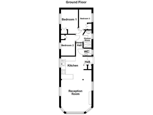
A rare low-cost entry to coastal park-home ownership, offered as a three-bedroom unit with open-plan living and a compact footprint (364 sq ft). The layout is practical: a fitted kitchen opening to the reception, a shower room plus separate WC, and built-in storage in bedrooms — suitable for short-stay lets or a simple holiday retreat.
This unit's strengths are the low asking price, on-site resort amenities, a dedicated off-street parking space and a wrap-around lawn that provides outdoor space without heavy maintenance. The property sits within a well-kept park close to the coast, making it attractive to holidaymakers and seasonal visitors.
Important practical considerations: the home is leasehold and small in overall size, with very slow broadband and an area-level record of higher crime and deprivation that may affect long-term rental demand. Room sizes are modest, and the accommodation is best suited to short stays or buyers who prioritise low-cost coastal access rather than full-time family living.
For investors, the combination of low purchase price and holiday-park location offers letting potential, but expect limitations from connectivity, local socio-economic factors and park tenancy rules. For a buyer seeking an affordable seaside base or holiday income stream, this is a straightforward, low-maintenance option with transparent compromises.
3 bedroom park home for sale in Moneyclose Lane, Heysham, Morecambe, LA3 — £30,000 • 3 bed • 1 bath • 364 ft²
2 bedroom park home for sale in Www.fourseasonsparks.com Oxcliffe Road, Morecambe, Lancashire, LA3 — £60,000 • 2 bed • 1 bath
3 bedroom property for sale in Moneyclose Lane, Heysham, Morecambe, LA3 — £35,000 • 3 bed • 1 bath
2 bedroom bungalow for sale in Westcliffe Drive, Morecambe, LA3 — £42,500 • 2 bed • 1 bath • 343 ft²
2 bedroom park home for sale in Oxcliffe Road, Heaton With Oxcliffe, Morecambe, LA3 — £67,950 • 2 bed • 2 bath • 639 ft²
1 bedroom park home for sale in www.fourseasonsparks.com Hawthorne Sands, Carr Lane , Morecambe, Heysham, Lancashire, LA3 3LL, LA3 — £16,995 • 1 bed • 1 bath






























































