Spacious three-bedroom home with garden office, parking and strong commuter links.
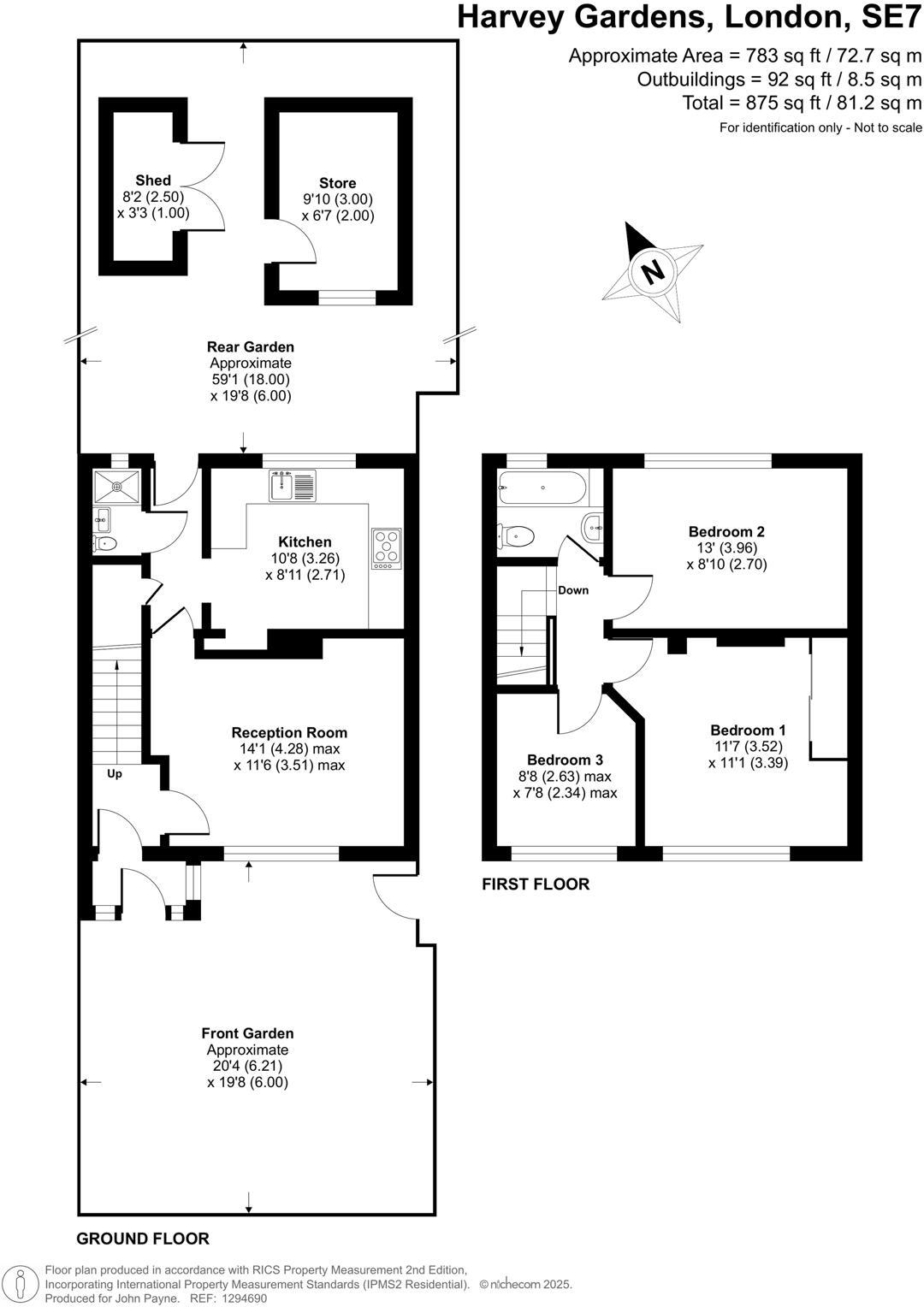
Three double bedrooms with a large master and built-in wardrobes
Two bathrooms including ground-floor WC and upstairs family bathroom
Off-street parking for up to two cars; decent plot size
West-facing garden with shed, lean-to and garden office with power
Potential to extend (STPP) to increase space and value
Shared alleyway access to rear garden with neighbour
Freehold; mid-20th century build with filled cavity walls
Area has above-average crime and signs of local deprivation
A well-proportioned three-bedroom terraced home on a quiet cul-de-sac, offering practical living space for a growing family. The ground floor includes a front reception, fitted kitchen with dining space, downstairs WC and a useful garden office with power — ideal for home working. Off-street parking for up to two cars and a sizeable west-facing garden provide outdoor space and afternoon sun.
Upstairs the layout provides a large master bedroom with built-in wardrobes, two further bedrooms and a bathroom with a shower-over-bath. Double glazing, gas central heating and wooden flooring add everyday comfort. There is scope to extend the property subject to planning permission (STPP), which will appeal to buyers wanting to increase space or add value.
Practical considerations are also straightforward: the house is freehold, of traditional build from the mid-20th century with filled cavity walls, and benefits from fast broadband and excellent mobile signal. Local amenities include parks, Charlton Lido, shops and direct rail links to central London, making this a convenient commuter location for families.
Buyers should note the neighbourhood has above-average crime statistics and local deprivation indicators; prospective purchasers should factor this into their checks. The property has a shared alleyway with the neighbour for garden access and, while well cared for, offers further potential through refurbishment or an extension for those seeking to personalise the home.
3 bedroom house for sale in Kashmir Road, Charlton, SE7 — £530,000 • 3 bed • 1 bath • 835 ft²
3 bedroom terraced house for sale in Charlton Park Lane, Charlton, SE7 — £525,000 • 3 bed • 1 bath • 1107 ft²
3 bedroom terraced house for sale in Charlton Park Lane, London, SE7 — £500,000 • 3 bed • 1 bath • 791 ft²
3 bedroom terraced house for sale in Hornfair Road, Charlton, SE7 — £525,000 • 3 bed • 1 bath • 645 ft²
3 bedroom semi-detached house for sale in Indus Road, Charlton, SE7 — £525,000 • 3 bed • 1 bath • 1005 ft²
3 bedroom terraced house for sale in Greenbay Road, Charlton, SE7 — £400,000 • 3 bed • 1 bath • 667 ft²






























































