Renovated, garden, garage — ideal for coastal family living.
Three double bedrooms plus flexible downstairs room or home office
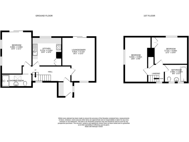
This extended three-bedroom end-of-terrace offers flexible, family-friendly accommodation in the heart of Mullion. Recently renovated, the house has a light lounge/diner with patio doors to an enclosed rear garden and a practical kitchen suited to everyday living. A downstairs bedroom with garden access provides options for a home office, guest room or second reception. Upstairs are two double bedrooms and a family bathroom, arranged over a traditional layout that feels comfortable and well-proportioned.
Practical points include an enclosed lawned garden with a raised deck, small front garden and a garage for storage or parking. The property is freehold, sold chain-free, and sits in Council Tax Band A. Broadband and mobile signals are strong locally, and Mullion offers good schools, shops and coastal walks on the Lizard peninsula.
Buyers should note the property is subject to a Local Housing (Section 157) restriction: purchasers must have lived or worked in Cornwall for the three years immediately prior to application and must be qualified by Cornwall Council. Heating is by electric storage heaters (with oil-fired services noted), the EPC is D (59), and while the home has been updated, the modest plot and mid-20th-century build mean there is still scope for personalisation.
Overall this is a sensible, ready-to-move-in family home in a popular village location — appealing to buyers needing good local schools, coastal access and a quiet neighbourhood, provided they meet the local residency/work qualifying requirements.
3 bedroom terraced house for sale in Three bedroom home with potential, Mullion, TR12 — £210,000 • 3 bed • 1 bath • 694 ft²
3 bedroom semi-detached house for sale in Riviera Close, Mullion, TR12 — £240,000 • 3 bed • 1 bath • 840 ft²
3 bedroom semi-detached house for sale in Lender Lane, Mullion, Helston, Cornwall, TR12 — £325,000 • 3 bed • 1 bath • 1078 ft²
3 bedroom semi-detached house for sale in Redannack North, Mullion, Helston, Cornwall, TR12 — £275,000 • 3 bed • 1 bath • 982 ft²
3 bedroom terraced house for sale in Tregellas Road, Helston, Chain Free Sale, TR12 — £220,000 • 3 bed • 1 bath • 437 ft²
3 bedroom terraced house for sale in Tregellas Road, Mullion, Helston, Cornwall, TR12 — £200,000 • 3 bed • 1 bath • 810 ft²






















































































