Five-bedroom property with long-standing charity tenant and strong immediate income.
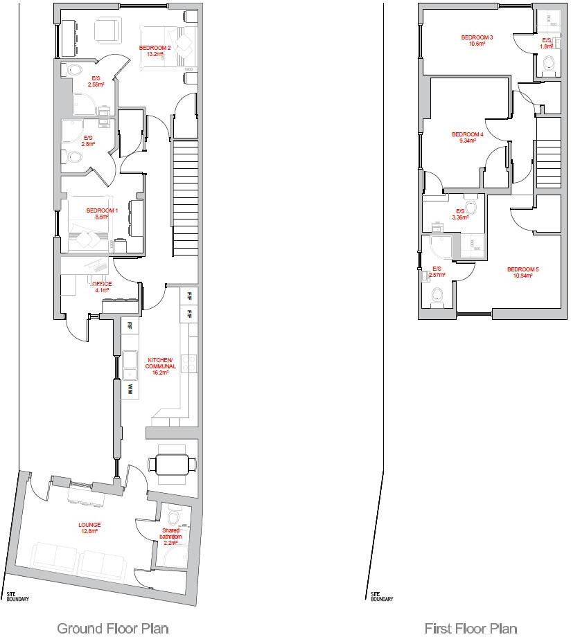
Five double bedrooms each with ensuite plus one additional bathroom
This compact five-bedroom, five-ensuite house is presented as an income-producing HMO with immediate cashflow. It is fully HMO-compliant, let to a charity under a single AST for around five years, and currently produces £35,280 pa (gross yield c.14.1%). Recent internal works deliver modern décor and integrated appliances throughout, making it largely turnkey for an investor seeking stable rental receipts.
Practical running costs are disclosed: expected annual outgoings of approximately £6,807. The property sits discreetly off West Street with a decent plot and separate living and dining rooms, offering flexibility if room reconfiguration is required. An HMO licence is in place and the current tenant profile provides a predictable, long-term income stream.
Notable risks and considerations are clear and factual. The wider area records very high crime levels and a transitional neighbourhood profile, which may affect tenant mix and re-letting prospects. The building is small in overall floor area (approx. 1,086 sq ft) and the tenure is listed as unknown; purchasers should confirm legal title and any licence conditions. Some exterior maintenance is indicated (roof attention noted), so budget for targeted repairs despite the refreshed interior.
This listing suits an investor prioritising immediate yield and occupational security from a long-standing charity tenant, but it is less suitable for buyers seeking quiet, low-crime residential locations or large family accommodation. Carrying out full legal checks and a site inspection to confirm external maintenance needs and tenure details is recommended before purchase.
House of multiple occupation for sale in Berners Street, Wakefield, West Yorkshire, WF1 4DY, WF1 — £155,000 • 1 bed • 1 bath
5 bedroom terraced house for sale in 12 Berners Street, Wakefield, WF1 4DY, WF1 — £155,000 • 5 bed • 2 bath • 1318 ft²
5 bedroom terraced house for sale in Nowell Mount, Leeds, LS9 — £135,000 • 5 bed • 5 bath • 1346 ft²
4 bedroom terraced house for sale in Henry Street, Wakefield, West Yorkshire, WF2 — £200,000 • 4 bed • 3 bath • 894 ft²
5 bedroom terraced house for sale in Austhorpe Road, Leeds, LS15 — £349,000 • 5 bed • 5 bath • 1875 ft²
5 bedroom terraced house for sale in Brudenell View, Leeds, West Yorkshire, LS6 — £350,000 • 5 bed • 2 bath • 1403 ft²


























































































