Two-bedroom single-storey home near excellent schools and easy transport links.
Detached two-bedroom single-storey home with traditional layout
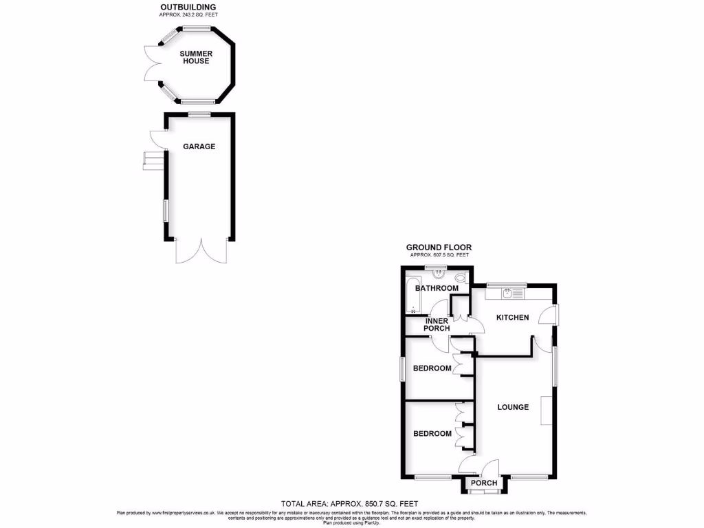
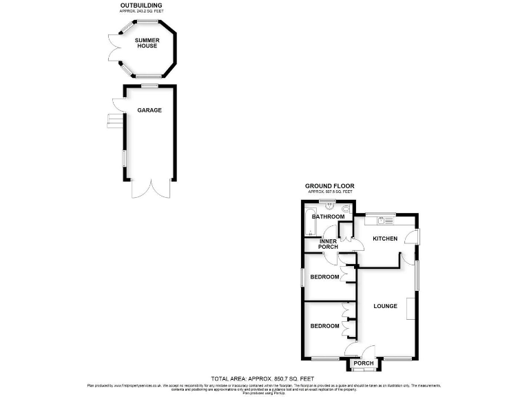
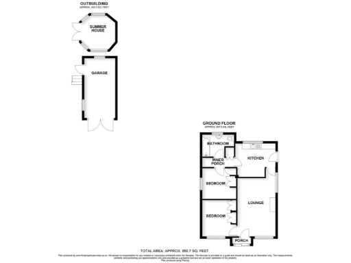
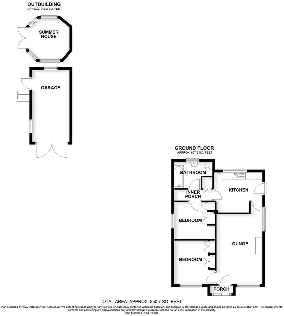
This detached two-bedroom bungalow on School Lane offers comfortable single-storey living on a generous plot in peaceful Caverswall. The bright lounge with a striking stone fireplace provides a welcoming focal point, while the adjoining kitchen/dining area suits everyday life and casual entertaining. A paved patio and neatly lawned rear garden create a quiet outdoor retreat, plus there’s a detached garage and ample block‑paved off‑street parking.
Built in the late 1960s–1970s, the property is solid and practical but not newly refurbished. Mains gas central heating and double glazing are installed; the Vaillant boiler is present but appliances and services have not been independently tested. The bungalow’s size (about 850 sqft) and traditional layout make it particularly suitable for downsizers seeking single‑level convenience, or first‑time buyers wanting a manageable home with scope to personalise.
Buyers should note a medium flood risk for the area and average broadband speeds; both are relevant for long‑term planning. The filled cavity walls and standard ceiling heights reflect the era of construction, so some updating or modernization may be desirable to suit contemporary tastes. Overall, the home offers straightforward, comfortable living in a village location close to strong primary schools and local amenities.
2 bedroom detached bungalow for sale in Elm Drive, Cheadle, ST10 — £250,000 • 2 bed • 1 bath • 819 ft²
3 bedroom detached bungalow for sale in Terson Way, Weston Coyney, ST3 — £230,000 • 3 bed • 2 bath • 808 ft²
2 bedroom semi-detached bungalow for sale in Scarratt Drive, Forsbrook, ST11 — £225,000 • 2 bed • 1 bath • 841 ft²
2 bedroom detached bungalow for sale in Sebring Avenue, Stoke-On-Trent, ST3 — £199,000 • 2 bed • 1 bath • 808 ft²
2 bedroom semi-detached bungalow for sale in Brentnor Close, Stoke-On-Trent, ST3 — £230,000 • 2 bed • 1 bath • 582 ft²
2 bedroom detached bungalow for sale in Caverswall Road, Weston Coyney, Stoke-on-Trent, ST3 — £250,000 • 2 bed • 1 bath • 753 ft²






























































