Compact one-bed in converted mill with communal garden; short lease poses lender risk.
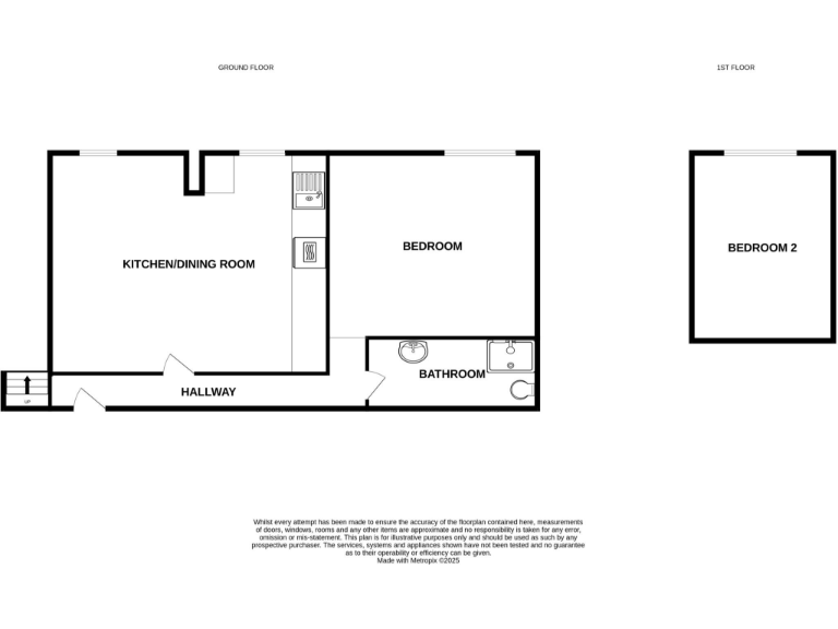
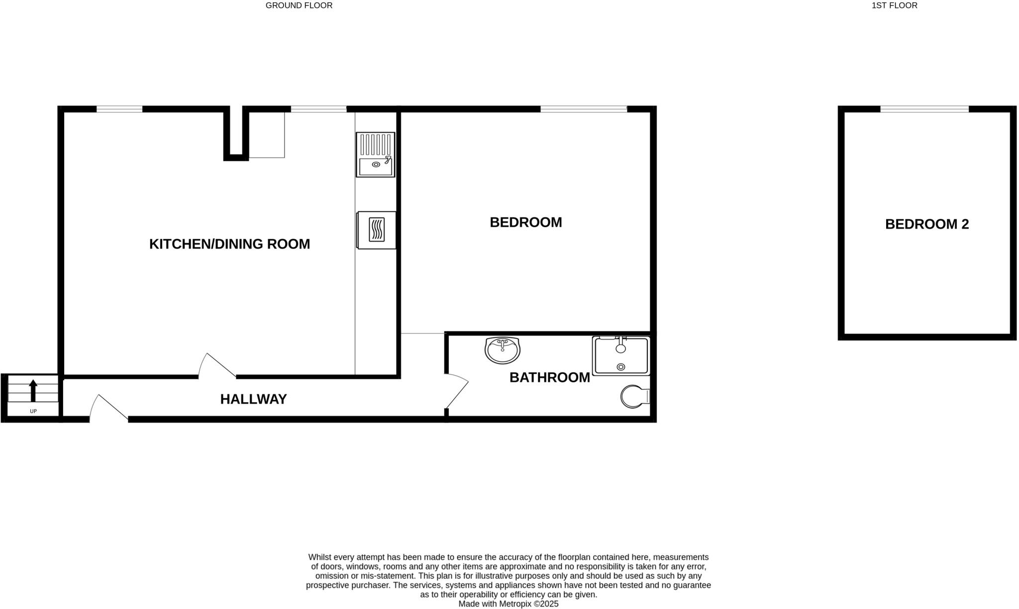
- Converted industrial building with original brick character
- Compact size ~420 sq ft, one bedroom, one bathroom
- Communal garden, double glazing, electric underfloor heating
- Fast broadband and convenient local amenities nearby
- Leasehold with 64 years remaining — lender risk for mortgages
- Ground rent £100; council tax very cheap
- Crime rate above average for the area
- No flood risk
This compact one-bedroom apartment sits within the converted Rivermill building, offering industrial character and a communal garden in Ramsey town fringe. At around 420 sq ft it's a low-cost entry into the area with fast broadband and practical electric underfloor heating — features that appeal to let-ready tenants or a buyer seeking a low-maintenance pied-à-terre.
The property’s strengths are clear: a converted brick exterior with original period character, communal outdoor space, double glazing, and very low council tax and a modest ground rent of £100. Broadband is fast and local amenities, schools and transport links are within easy reach, making the location convenient for occupiers.
Important practical considerations: the apartment is leasehold with only 64 years remaining. Many mortgage lenders refuse to lend on leases this short, so buyers should expect a cash purchase or specialist lending; lease extension and associated costs will need to be investigated. Crime in the immediate area is above average, which may affect lettability and insurance premiums.
Overall, this is a budget-priced, small one-bed with character and clear investor or cash-buyer potential, but it carries material lease and area-safety issues that must be resolved before traditional mortgage financing or long-term owner-occupation.
1 bedroom flat for sale in Rivermill Apartments, Ramsey, PE26 — £67,000 • 1 bed • 1 bath • 404 ft²
1 bedroom ground floor flat for sale in Great Whyte, Ramsey, Huntingdon, PE26 — £65,000 • 1 bed • 1 bath • 377 ft²
1 bedroom apartment for sale in Little Whyte, Ramsey, Huntingdon, Cambridgeshire, PE26 — £100,000 • 1 bed • 1 bath • 409 ft²
1 bedroom apartment for sale in Lion Yard, High Street, Ramsey, Huntingdon, PE26 — £90,000 • 1 bed • 1 bath • 407 ft²
1 bedroom apartment for sale in Station Gardens, Ramsey, Huntingdon, Cambridgeshire, PE26 — £80,000 • 1 bed • 1 bath • 459 ft²
1 bedroom apartment for sale in Lion Yard, High Street, Ramsey, Huntingdon, PE26 — £95,000 • 1 bed • 1 bath • 406 ft²


























