Top-floor flat with attractive park views and period character
Share of freehold with a new 999-year lease, chain free
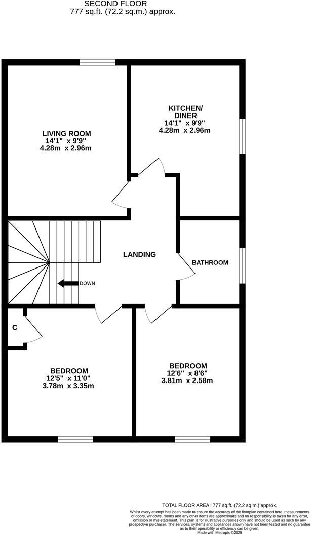
Eat-in kitchen suitable for dining and everyday living
Large loft with pull-down ladder offers substantial storage
No private garden; limited external space for outdoor use
Solid brick walls likely without insulation; may need upgrades
Area recorded as very high crime; local deprivation is very high
Council Tax band A — very cheap running costs
This top-floor two-bedroom apartment combines period character with a practical layout, ideal for a first-time buyer or buy-to-let investor. The property sits within easy walking distance of Hastings town centre, the seafront, Alexandra Park and the mainline station, offering strong local convenience and transport links.
Inside, rooms are neutrally presented and move-in ready, with a bright living room, an eat-in kitchen and two bedrooms. The main bedroom has built-in storage and a large loft with a pull-down ladder provides useful additional storage. The flat benefits from a new 999-year lease, share of freehold and is sold chain free.
Buyers should note material local factors: the area records very high crime and is classed as very deprived, which may affect resale and rental yields. The building is a pre-1900 solid brick construction likely without wall insulation, so upgrading insulation and heating efficiency may be worth budgeting for. There is no private garden and room sizes are modest compared with larger family homes.
Overall this property offers an affordable route into Hastings with immediate convenience, period charm and long lease security. It suits a purchaser willing to accept compact rooms and some upgrade work in exchange for central location, low council tax and good transport connections.















































