Ready-income investment close to station and high street amenities.
- Currently let as HMO producing c. £2,320 pcm
- Long lease: approximately 123 years remaining
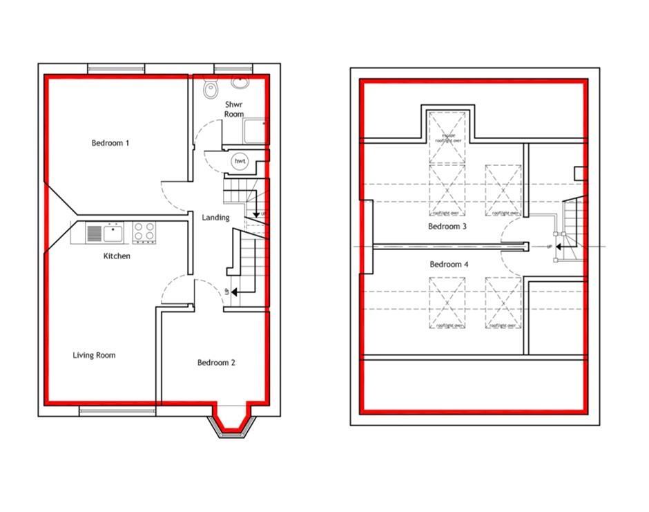
- Four bedrooms across two floors, single shower room
- No private garden; upper-floor flat above retail
- Ground-floor shopfront shows timber/paintwork wear
- Double glazing (pre-2002) and mains gas central heating
- Fast broadband and good commuter links by rail
- Confirm HMO licence, tenancy details and consents
A practical investment in central Lancing, this four-bedroom maisonette currently operates as an HMO producing immediate income of about £2,320 pcm (guide price £225,000–£250,000). The flat sits over ground-floor retail in a mid-20th-century terrace, offering two storeys of living space with an open-plan kitchen/living area and four bedrooms — a layout that suits sharers or rental portfolios.
The property benefits from a long lease (approximately 123 years remaining), mains gas central heating with a boiler and radiators, double glazing (installed before 2002) and fast broadband — useful for lettings demand. Its position close to Lancing high street and train station gives strong commuter appeal with links to Brighton, Gatwick and London. Local schools and shops are within easy reach.
Notable limitations are straightforward and important to consider. Accommodation includes a single shower room serving four bedrooms, and there is no private garden visible. The building shows some external wear at the shopfront level and will need cosmetic attention. The maisonette is above commercial premises, so access arrangements, HMO licensing, any existing tenancy agreements and planning/building regulation compliance should be checked by a buyer’s solicitor before purchase.
For an investor this is a turn-key rental asset with short-term income and scope to increase value through refurbishment or reconfiguration. For an owner-occupier it offers flexible space in a town-centre location but expect limited outdoor space and shared-styled accommodation.
4 bedroom maisonette for sale in Crabtree Lane, Lancing, BN15 — £250,000 • 4 bed • 1 bath • 889 ft²
2 bedroom flat for sale in Crabtree Lane, Lancing, BN15 — £175,000 • 2 bed • 1 bath • 554 ft²
High street retail property for sale in 34 Crabtree Lane, Lancing, West Sussex, BN15 9PQ, BN15 — £130,000 • 1 bed • 1 bath • 606 ft²
Commercial property for sale in Crabtree Lane, Lancing, BN15 — £150,000 • 1 bed • 1 bath
6 bedroom house share for sale in West End Way, Lancing, BN15 — £499,950 • 6 bed • 2 bath • 489 ft²
4 bedroom maisonette for sale in Upper Lewes Road, Brighton, BN2 — £350,000 • 4 bed • 1 bath • 1014 ft²


































