Private balcony, parking and gym moments from high street and transport links.
Bright open-plan living with hardwood floors and dining space
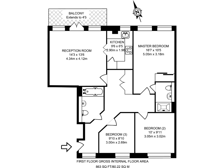
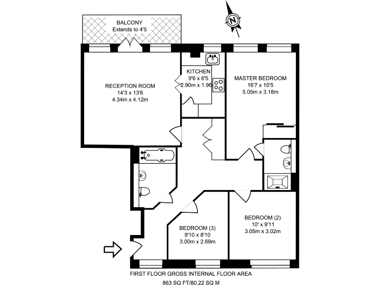
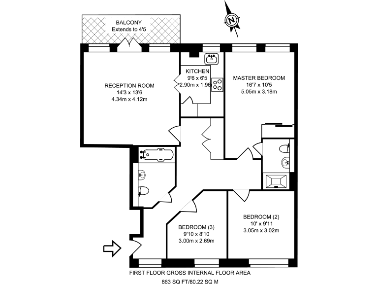
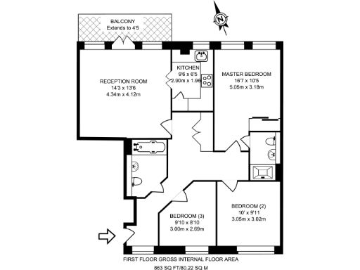
This bright three-bedroom apartment sits on Durham Wharf Drive with direct canal views and a private balcony. The open-plan living and dining area benefits from good natural light and hardwood floors; the kitchen is fully fitted with integrated appliances. The master bedroom includes an en suite shower room, and there is off-street parking and a communal gym on site.
Practical details suit family life: the flat is 863 sq ft, constructed in the mid-2000s, double glazed, and comes with a very long lease (973 years). Local schools are well rated and the High Street, Brentford station and major road links (A40/M4) are within easy reach, making commutes and errands straightforward.
Be clear about running costs and risks: heating is by electric room heaters rather than a central gas system, and the service charge and ground rent average £2,944 and £150 respectively. The property is in an area flagged as having a high flood risk — this is a material issue to investigate with insurers and surveyors before purchase.
Overall, the apartment offers modern, low-maintenance living and strong transport connections, balanced against higher flood risk and electric heating. The long lease and on-site amenities make it a practical choice for families or buyers seeking a convenient riverside base with potential for light cosmetic updates.
 3 bedroom flat for sale in Durham Wharf Drive, Brentford, TW8 — £500,000 • 3 bed • 2 bath • 997 ft²
 3 bedroom flat for sale in Durham Wharf Drive, Brentford, TW8 — £500,000 • 3 bed • 2 bath • 997 ft² 3 bedroom flat for sale in Halyards Court, TW8 — £700,000 • 3 bed • 2 bath • 1127 ft²
 3 bedroom flat for sale in Halyards Court, TW8 — £700,000 • 3 bed • 2 bath • 1127 ft² 1 bedroom flat for sale in Durham Wharf Drive, Brentford, TW8 — £400,000 • 1 bed • 1 bath • 547 ft²
 1 bedroom flat for sale in Durham Wharf Drive, Brentford, TW8 — £400,000 • 1 bed • 1 bath • 547 ft² 2 bedroom flat for sale in Goat Wharf, Brentford, TW8 — £369,000 • 2 bed • 2 bath • 913 ft²
 2 bedroom flat for sale in Goat Wharf, Brentford, TW8 — £369,000 • 2 bed • 2 bath • 913 ft² 3 bedroom penthouse for sale in Halyard Court, Durham Wharf Drive, Brentford, TW8 — £825,000 • 3 bed • 2 bath • 1193 ft²
 3 bedroom penthouse for sale in Halyard Court, Durham Wharf Drive, Brentford, TW8 — £825,000 • 3 bed • 2 bath • 1193 ft² 2 bedroom flat for sale in Bridge House, TW8 — £400,000 • 2 bed • 1 bath • 578 ft²
 2 bedroom flat for sale in Bridge House, TW8 — £400,000 • 2 bed • 1 bath • 578 ft²


























































































































