**Key Features:**
- **Leasehold:** 61 years remaining (may impact mortgage options)
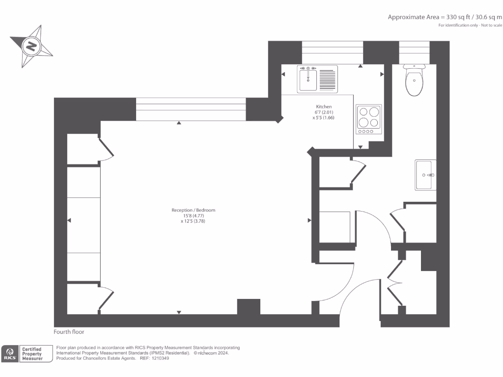
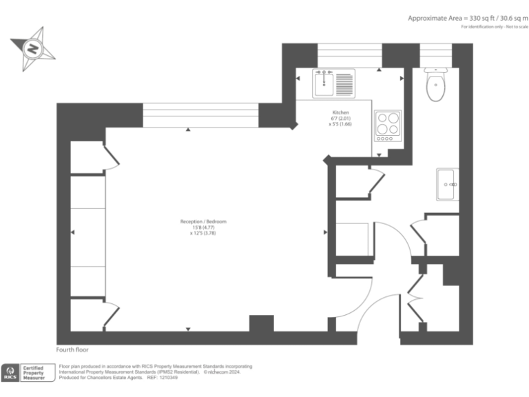
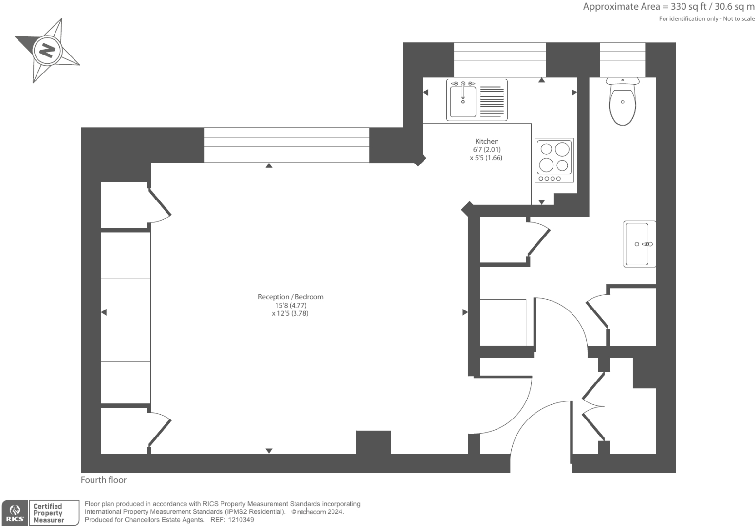
- **Size:** 330 sq. ft., Art Deco style
- **Location:** Prime area near Kensington High Street and Notting Hill Gate
- **Building Amenities:** Concierge service, portered entrance
- **Potential Concerns:** High crime rate and significant service charge of £2,955
This charming studio apartment in an elegant Art Deco building presents a unique opportunity for first-time buyers or savvy investors. Spanning 330 square feet, it features a contemporary design with hardwood floors and large windows that bathe the space in natural light. You'll enjoy the perks of concierge services in a sought-after residential area, just a stone’s throw from the vibrant atmosphere of Kensington High Street and Notting Hill Gate.
However, potential buyers should note that the remaining 61-year lease may present challenges for securing financing. While the location offers convenience and a cosmopolitan lifestyle, the high crime rate could be an important consideration. This property can be ideal for those looking to invest in a lively area, where a diverse range of amenities and highly-rated schools are within reach. Don't miss this chance to make this stylish studio your own—viewings are highly recommended!
Studio flat for sale in Vicarage Court, Kensington, W8 — £375,000 • 1 bed • 1 bath • 333 ft²
Studio apartment for sale in Chatsworth Court, Pembroke Road, London, W8 — £425,000 • 1 bed • 1 bath • 373 ft²
Studio flat for sale in Broadwalk Court, 79 Palace Gardens Terrace, London, W8 — £350,000 • 1 bed • 1 bath
Studio flat for sale in Rabbit Row, London, W8, W8 — £390,000 • 1 bed • 1 bath • 376 ft²
Studio apartment for sale in Earls Court Road, London, W8 — £465,000 • 1 bed • 1 bath • 323 ft²
Studio flat for sale in Broadwalk Court, 79 Palace Gardens Terrace, London, W8 — £395,000 • 1 bed • 1 bath • 326 ft²


















































































