Bright one-bedroom apartment with allocated parking and private outdoor space in bustling Roath.
Bright open-plan lounge with doors onto private outdoor space
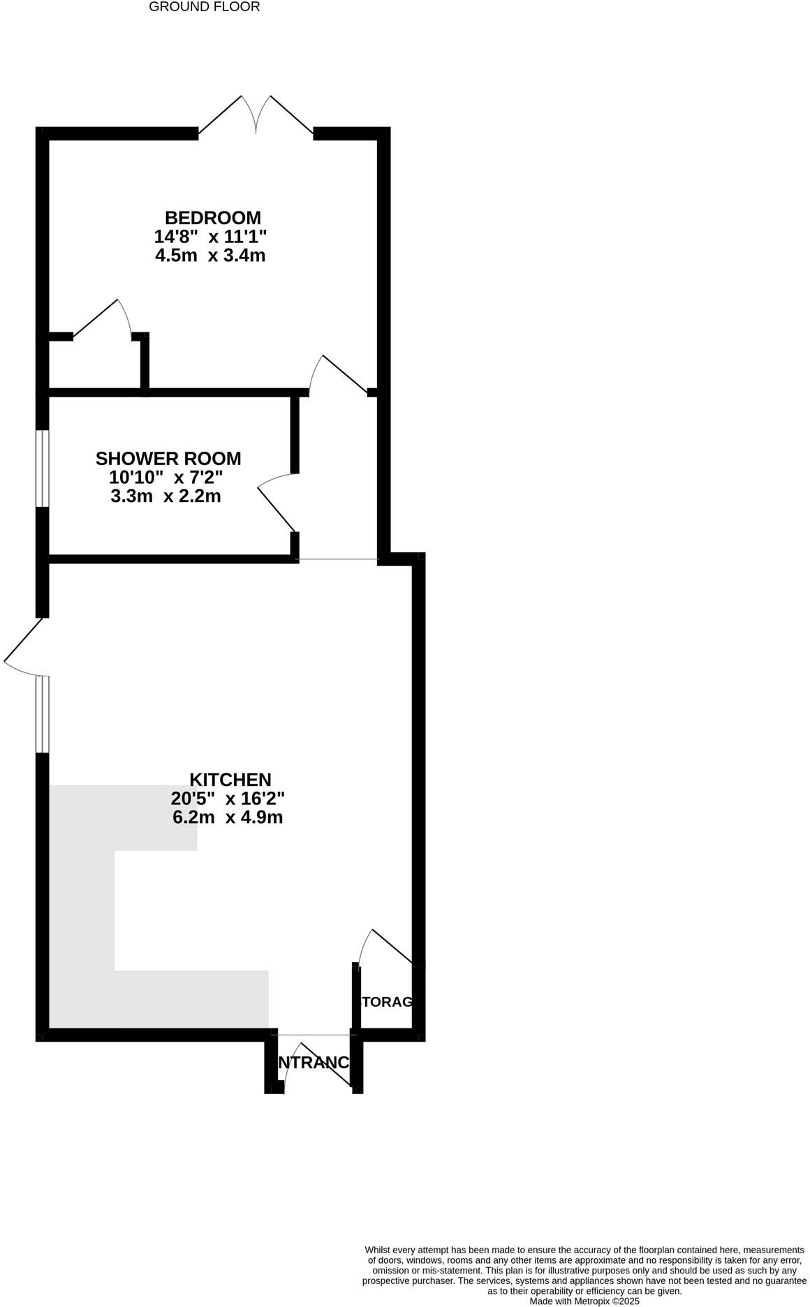
Built only five years ago, this bright one-bedroom ground-floor apartment offers easy, low-stairs living with private outdoor space and two allocated parking spaces to the rear. The open-plan living area opens directly onto a well-kept garden, while the contemporary kitchen includes integrated appliances and a compact breakfast bar — ideal for low-maintenance, modern living.
The double bedroom also benefits from direct garden access, and the bathroom is finished to a high standard. Practical extras include an average overall size of 570 sq ft, excellent mobile signal and fast broadband, and a long lease (119 years remaining).
Be clear about the running costs and local context: the property is leasehold with an annual service charge of around £1,200 and a small ground rent of £50. The immediate area is a cosmopolitan, student-oriented neighbourhood with higher-than-average crime statistics and notable deprivation, which may affect resale or rental expectations.
This apartment will suit first-time buyers and investors seeking a modern, low-maintenance home with outdoor space and strong connectivity to Cardiff city centre. It offers genuine convenience and contemporary finishes, but buyers should factor in service charges, local area characteristics, and the compact internal footprint when deciding to view.
1 bedroom apartment for sale in Elm Street, Roath, Cardiff, CF24 — £135,000 • 1 bed • 1 bath
1 bedroom apartment for sale in Morlais Street, Roath Park, Cardiff, CF23 — £175,000 • 1 bed • 1 bath • 327 ft²
1 bedroom flat for sale in Leckwith Road, Cardiff, CF11 — £160,000 • 1 bed • 1 bath • 538 ft²
2 bedroom apartment for sale in Harrismith Road, Cardiff, CF23 — £265,000 • 2 bed • 2 bath • 797 ft²
1 bedroom apartment for sale in Carlotta Way, Cardiff Bay, Dumballs Road, CF10 — £118,000 • 1 bed • 1 bath • 350 ft²
2 bedroom apartment for sale in Cowper Court, Cowper Place, Roath, Cardiff, CF24 — £210,000 • 2 bed • 1 bath • 723 ft²










































