**Standout Features:**
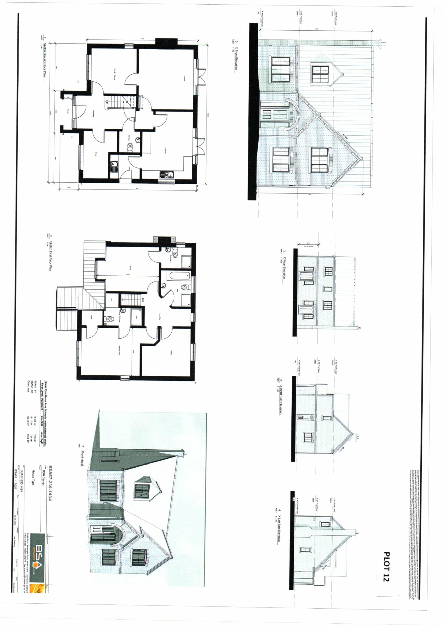
- Newly constructed 3-bedroom detached house in a prestigious rural development.
- Spacious layout with a 14' lounge and stunning 14' living kitchen featuring integrated appliances and granite countertops.
- Three modern bathrooms, including two ensuites with contemporary fittings.
- Large gardens adjoining woodland for privacy and natural beauty.
- Air source heating with energy-efficient design rated Band B.
- Double garage with electric roller doors and additional off-street parking.
**Potential Concerns:**
- Ongoing maintenance required for garden upkeep.
- Limited local amenities due to remote setting.
**Summary:**
Nestled in the serene hamlet of Kilpin, this superbly appointed detached house is perfect for families and professionals seeking a countryside retreat with modern conveniences. Boasting a spacious layout, this home features an inviting lounge with a rustic brick fireplace, a stunning living kitchen with a wealth of integrated appliances, and three generous bedrooms, each thoughtfully designed with their own modern bathrooms.
The expansive gardens offer beautiful vistas of the adjoining woodlands, providing a tranquil outdoor space to unwind and entertain. With energy-efficient air source heating and a convenient double garage, this property holds excellent appeal for those seeking comfort and functionality without compromising on style.
While it presents a rare opportunity to enjoy rural living with easy access to major cities like Hull, York, and Leeds, prospective buyers should be mindful of the limited local amenities, making this a prime spot for those valuing privacy and nature over bustling urban life. Don’t miss your chance to make this beautiful home your own—properties like this in such a prestigious development are hard to come by!
4 bedroom detached house for sale in Plot 11, Hunters Chase, Kilpin, Nr Howden, DN14 7ZB, DN14 — £450,000 • 4 bed • 3 bath • 886 ft²
6 bedroom detached house for sale in Hunters Chase, Kilpin, Nr Howden, DN14 7ZB, DN14 — £765,000 • 6 bed • 5 bath • 1708 ft²
4 bedroom detached house for sale in Sycamore Close, Howden, Goole, Yorkshire, DN14 — £675,000 • 4 bed • 5 bath • 2831 ft²
4 bedroom detached house for sale in Welton Low Road, Elloughton, HU15 — £420,000 • 4 bed • 2 bath • 1785 ft²
4 bedroom detached house for sale in Langhorn Drive, Howden, Goole, DN14 — £368,000 • 4 bed • 2 bath • 1238 ft²
4 bedroom detached house for sale in Brier Lane, Newland, Selby, YO8 — £400,000 • 4 bed • 3 bath • 1056 ft²






























































































