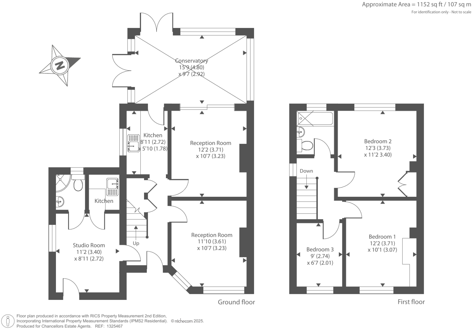
**Standout Features:**
- Semi-detached family home with three/four bedrooms
- Two reception rooms and a conservatory
- Separate studio room with kitchenette and ensuite
- Large westerly-facing rear garden
- Off-street parking for one vehicle
- Immediate vacant possession and no forward chain
- Potential for renovation and expansion (subject to planning permission)
Discover the potential in this unmodernised semi-detached family home, ideally situated in the affluent village of Kennington, just south of Oxford. Boasting 1,152 sq ft of adaptable living space, the property comprises three generously sized bedrooms (with the option for a fourth in a separate studio), two reception rooms, and a conservatory opening onto a large, westerly-facing garden—perfect for family gatherings or quiet evenings outdoors.
While the home presents opportunities for renovation, it allows for the chance to create a stunning family retreat that fits modern living. With the possibility to extend to the side, rear, and into the loft, the property is a blank canvas awaiting your personal touch. Enjoy the convenience of off-street parking and proximity to local amenities, sports fields, and a selection of quality schools, including the sought-after St Swithun's Church of England School.
Don't miss the chance to shape this home into your dream living space. Properties like this, with flexible living options and immediate availability, are rare—act fast to secure your future in this desirable community.
4 bedroom semi-detached house for sale in Kennington, Oxford, OX1 — £600,000 • 4 bed • 2 bath • 1633 ft²
4 bedroom semi-detached house for sale in Grundy Crescent, Kennington, Oxford, Oxfordshire, OX1 — £625,000 • 4 bed • 2 bath • 1579 ft²
3 bedroom detached house for sale in Kennington, Oxford, OX1 — £500,000 • 3 bed • 2 bath • 1116 ft²
2 bedroom semi-detached house for sale in Meadow View Road, Kennington, OXFORD, OX1 — £350,000 • 2 bed • 1 bath • 786 ft²
4 bedroom semi-detached house for sale in Fairways, Kennington, Oxford, OX1 — £575,000 • 4 bed • 3 bath • 1500 ft²
3 bedroom semi-detached house for sale in Grundy Crescent, Oxford, OX1 — £500,000 • 3 bed • 1 bath • 801 ft²














































































