**Standout Features:**
- Recently renovated, high-specification detached home
- Five spacious double bedrooms, including two with en-suite bathrooms
- Open-plan kitchen/dining area, plus three additional reception rooms
- Converted double garage currently used as a gym
- Off-road parking with easy access to Cowbridge town center
- Newly landscaped garden featuring a patio and pitched roof pergola
**Summary Description:**
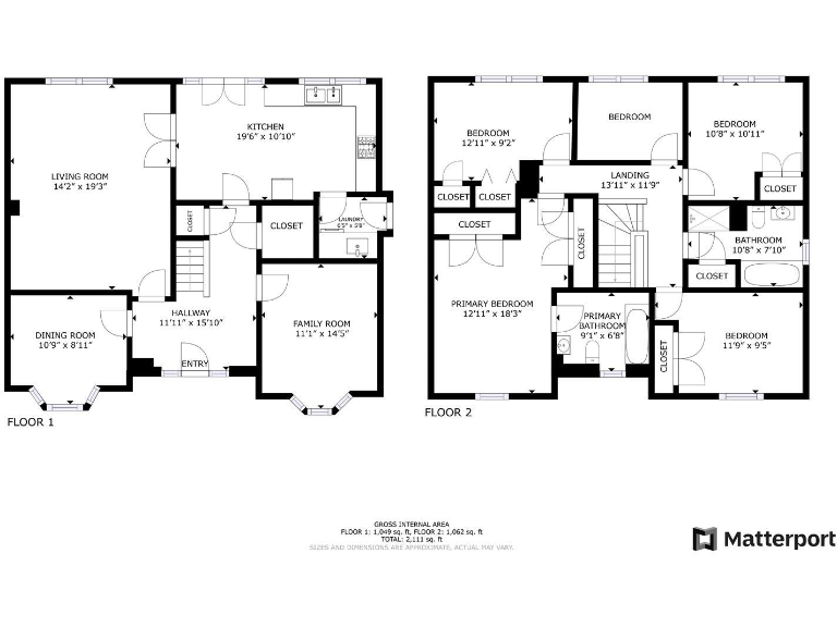
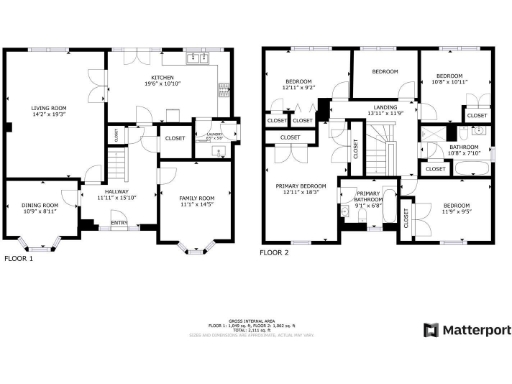
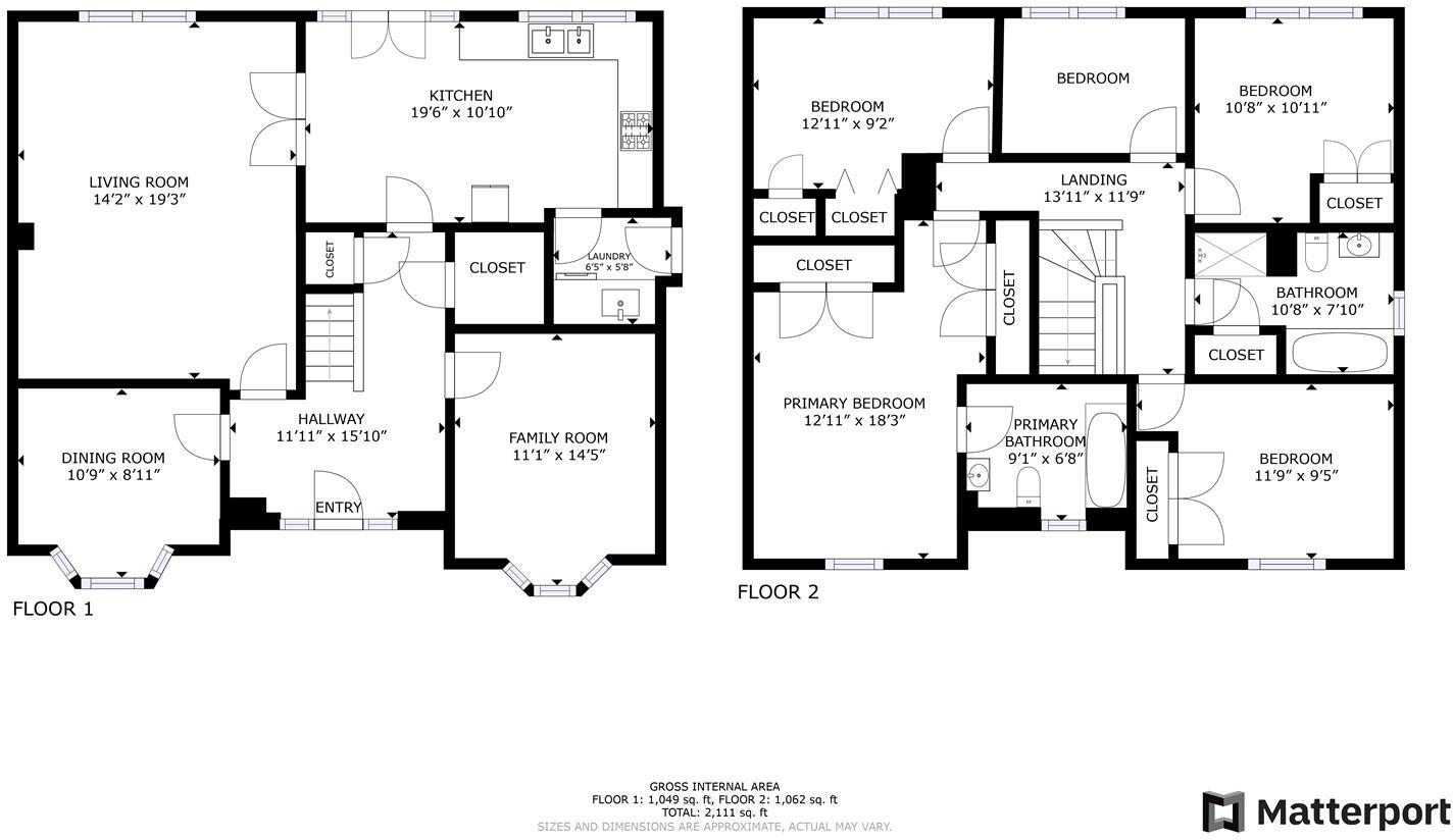
Discover this modernized five-bedroom detached family home located in the sought-after Clare Garden Village, just a short walk from Cowbridge town center. With a generous 2,111 square feet of living space, this property boasts a well-thought-out layout, including an inviting entrance hallway, three reception rooms, and a contemporary open-plan kitchen and dining area equipped with high-end appliances and finishes. Each of the five bedrooms is sizable, providing comfort for every family member, while the master and second bedrooms feature their own en-suite bathrooms for added private convenience.
The outside space is equally impressive, highlighted by a gorgeous, landscaped garden ideal for family gatherings and outdoor entertaining, enhanced by an elegant pitched roof pergola. The converted double garage serves as a versatile gym space, perfect for fitness enthusiasts or can be transformed into a home office. Coupled with excellent mobile and broadband connectivity, low crime rates, and proximity to excellent schools, this property represents an exceptional opportunity for families seeking a balance of comfort and convenience in a tranquil countryside setting. With all its refined features and appeal, this home is undoubtedly one to act on without delay.
5 bedroom detached house for sale in Brynach Way, Clare Garden Village, Cowbridge, Vale of Glamorgan, CF71 7FZ, CF71 — £650,000 • 5 bed • 3 bath • 2100 ft²
4 bedroom detached house for sale in Clisson Close, Cowbridge, CF71 — £625,000 • 4 bed • 3 bath • 1750 ft²
4 bedroom detached house for sale in Clisson Close, Cowbridge, CF71 — £500,000 • 4 bed • 2 bath • 880 ft²
5 bedroom detached house for sale in Bryntirion, Church Hill Close, Cowbridge, The Vale of Glamorgan CF71 7JH, CF71 — £875,000 • 5 bed • 5 bath • 2930 ft²
4 bedroom detached house for sale in 18 Mill Park, Cowbridge, The Vale of Glamorgan CF71 7BG, CF71 — £449,000 • 4 bed • 1 bath • 1051 ft²
4 bedroom detached house for sale in 20 Mill Park, Cowbridge, The Vale of Glamorgan CF71 7BG, CF71 — £470,000 • 4 bed • 2 bath • 1291 ft²










































































































