**Standout Features:**
- Newly renovated link-detached home with modern finishes
- Spacious open-plan kitchen with integrated appliances and bi-fold doors
- Landscaped private garden ideal for relaxation and entertainment
- Off-road parking available
- 3 bedrooms and a stylish bathroom
- Close to good-rated schools and essential amenities
- EPC Rating D
**Property Summary:**
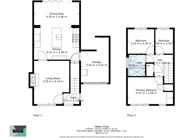
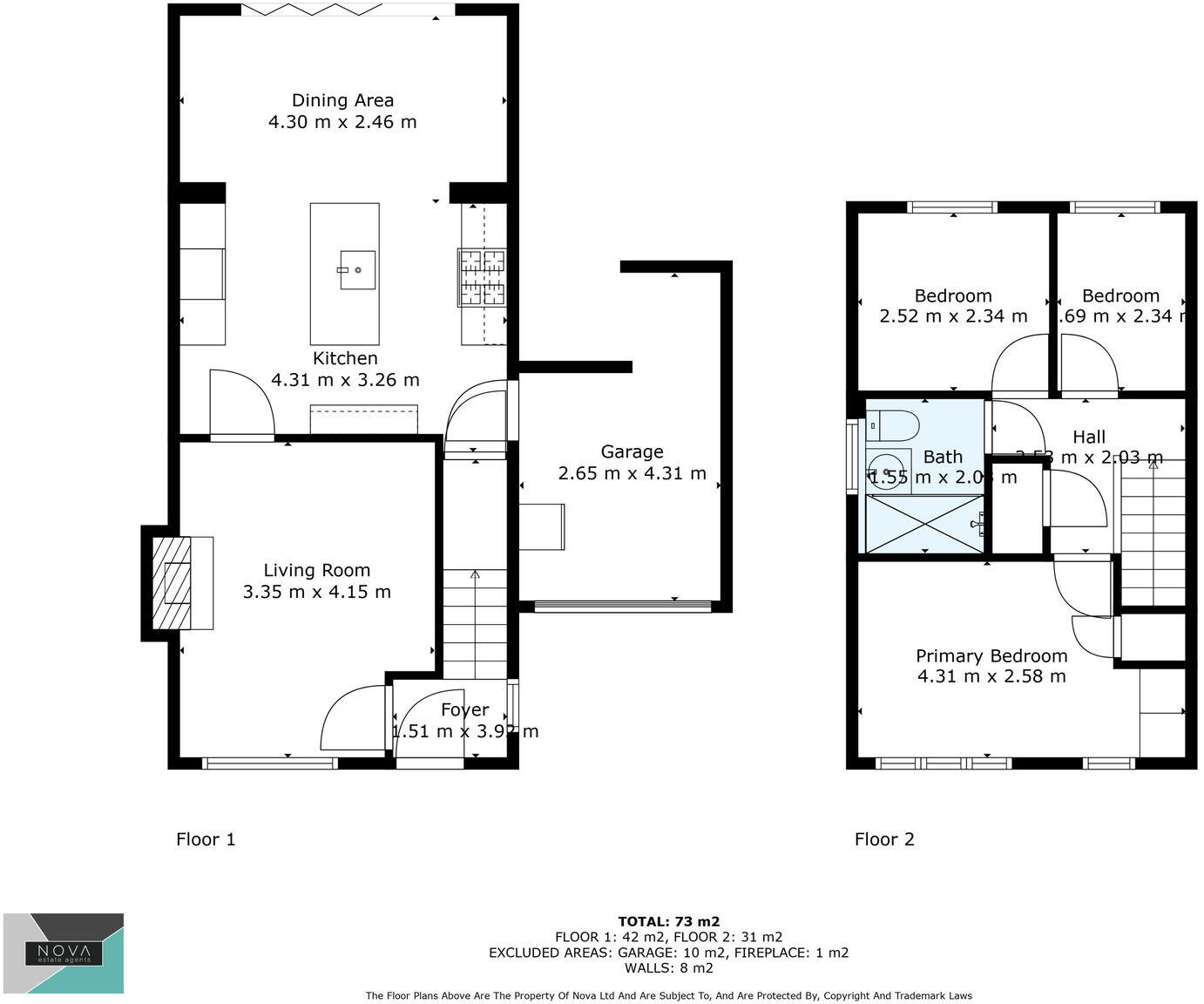
Don't miss the chance to own this beautifully renovated link-detached home in the sought-after area of Widnes. Offering 785 square feet of contemporary living, this property features an extended open-plan living space filled with natural light, courtesy of skylights and bi-fold doors that open onto a stunning landscaped garden. The modern kitchen comes equipped with high-spec appliances, making it perfect for family gatherings and entertaining guests.
This home also includes three comfortable bedrooms and a stylishly appointed bathroom, making it ready for you to move in without the need for further renovations. With ample off-road parking and a new boiler along with smart heating controls, you'll have both convenience and peace of mind.
Set in a vibrant community with good access to local schools rated 'Good' by Ofsted, as well as essential amenities like shops and healthcare services, this property caters perfectly to families looking for a secure and nurturing environment. Given the home's impressive renovation and excellent location, early interest is highly recommended. Seize this opportunity and arrange your viewing today!
3 bedroom semi-detached house for sale in Nicholas Road, Widnes, WA8 8ST, WA8 — £199,950 • 3 bed • 1 bath
3 bedroom detached house for sale in Balmoral Road, Widnes, WA8 9HE, WA8 — £410,000 • 3 bed • 3 bath • 1125 ft²
3 bedroom semi-detached house for sale in Dickson Street, Widnes, WA8 6NX, WA8 — £220,000 • 3 bed • 1 bath • 753 ft²
3 bedroom detached house for sale in Holkham Close, Widnes, WA8 — £350,000 • 3 bed • 3 bath • 1377 ft²
3 bedroom semi-detached house for sale in King Oswald Crescent, Widnes, WA8 — £310,000 • 3 bed • 3 bath
3 bedroom semi-detached house for sale in Trentham Close, Widnes, WA8 — £235,000 • 3 bed • 1 bath • 753 ft²










































































































































