Affordable project offering good refurbishment upside and a large private garden.
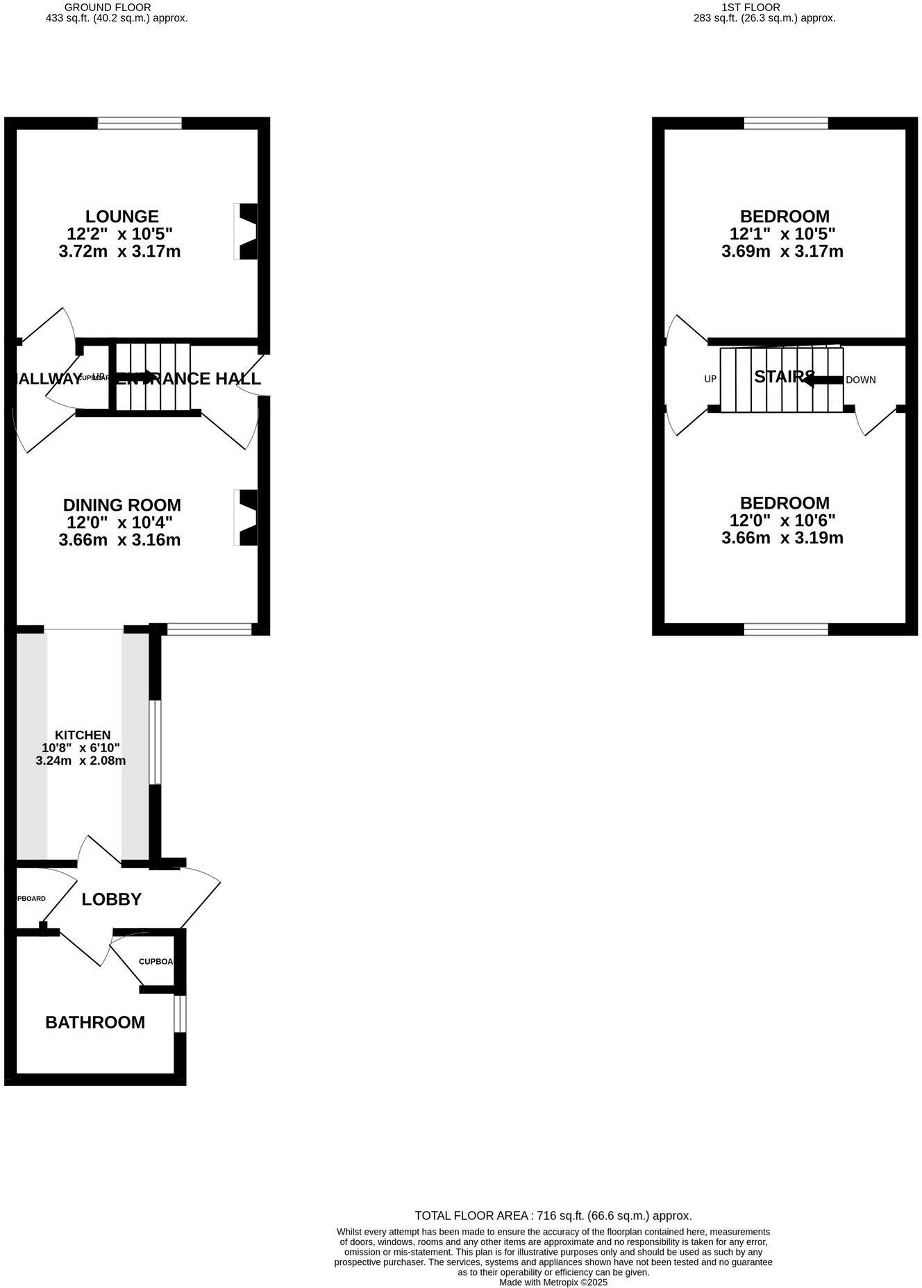
Chain free two-bedroom semi-detached home
A straightforward two-bedroom semi-detached house offered chain-free and priced for a buyer prepared to improve and add value. The property has two double bedrooms, a ground-floor bathroom, a separate dining room and lounge, plus a sizeable private rear garden with shed. There is potential to create off-street parking to the front by dropping the kerb (subject to permissions).
The house needs renovation throughout: cosmetic updating, likely insulation and energy improvements (solid brick walls assumed uninsulated), and modernisation of services. The boiler is located in the bathroom and glazing dates from before 2002; the EPC is TBC. These factors are reflected in the price and present clear scope for a refurbishing investor or an owner-occupier willing to carry out works.
Set in Woodville with fast broadband and good road links to Swadlincote, Burton and the M1 corridor, the home suits a buy-to-let or a value-add project. Nearby schools and local amenities are within walking distance, though school inspection results in the immediate area are mixed. The property is offered freehold with vacant possession on completion.
2 bedroom end of terrace house for sale in Swadlincote Road, Woodville, DE11 8DE, DE11 — £145,000 • 2 bed • 1 bath • 703 ft²
2 bedroom semi-detached house for sale in Falcon Way, Woodville, Swadlincote, DE11 — £179,950 • 2 bed • 1 bath • 484 ft²
3 bedroom semi-detached house for sale in Woodville Road, Overseal, DE12 6LX, DE12 — £155,000 • 3 bed • 1 bath • 733 ft²
3 bedroom semi-detached house for sale in Merlin Way, Woodville DE11 7QU, DE11 — £185,000 • 3 bed • 1 bath • 987 ft²
2 bedroom semi-detached house for sale in 15 Thorn Street Mews Woodville, Swadlincote, DE11 — £200,000 • 2 bed • 1 bath • 633 ft²
3 bedroom detached house for sale in Hartshorne Road, Woodville, Swadlincote, DE11 — £269,500 • 3 bed • 1 bath • 958 ft²


































































