NG2 6JR - 5 bedroom detached house for sale in Rydal Gardens, West Br…

View on Property Piper

5 bedroom detached house for sale in Rydal Gardens, West Bridgford, NG2

Summary - Rydal Gardens, West Bridgford NG2 6JR

5 bed 3 bath Detached

Renovated five-bedroom detached home on a large corner plot in top school catchment..
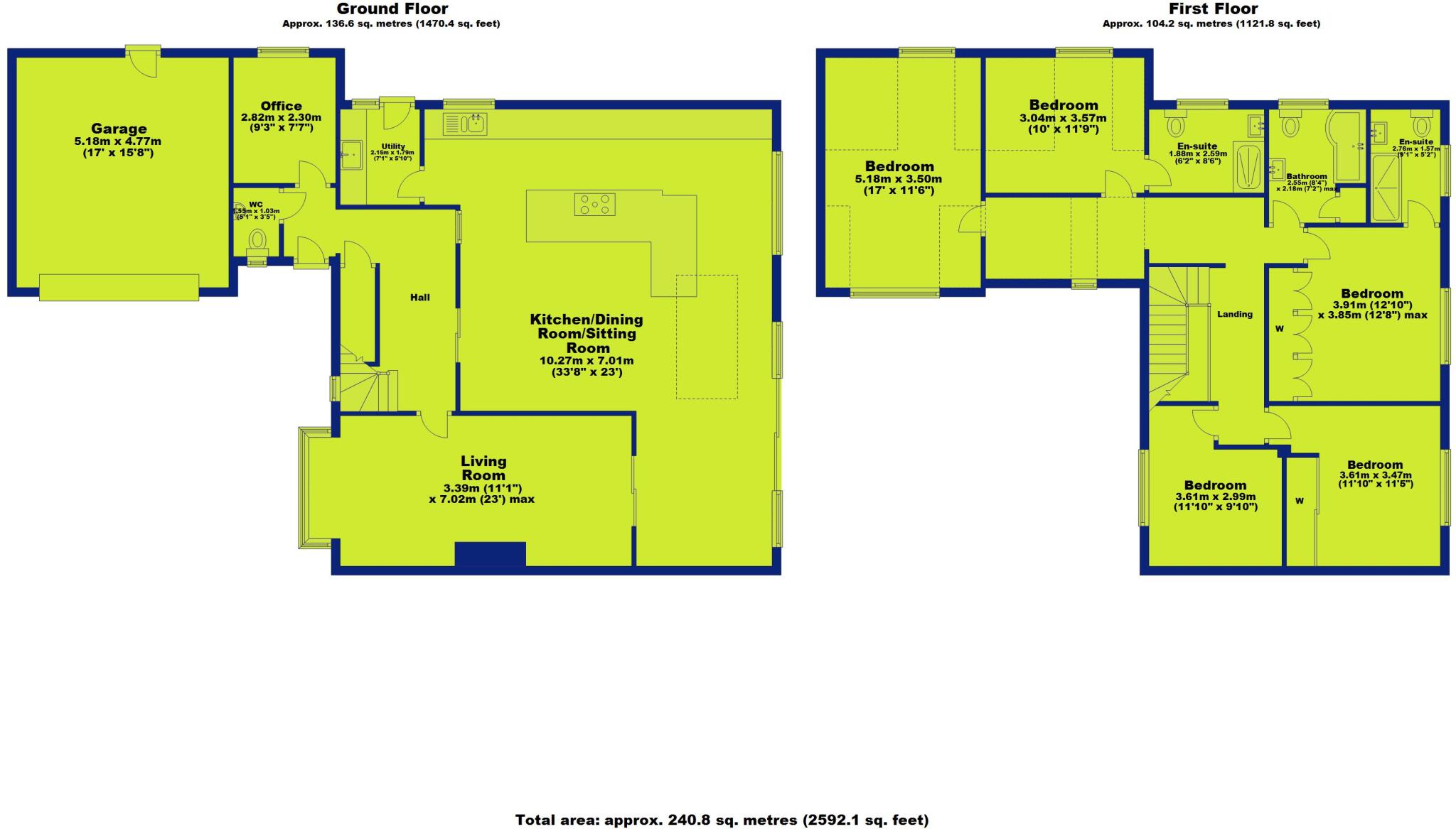
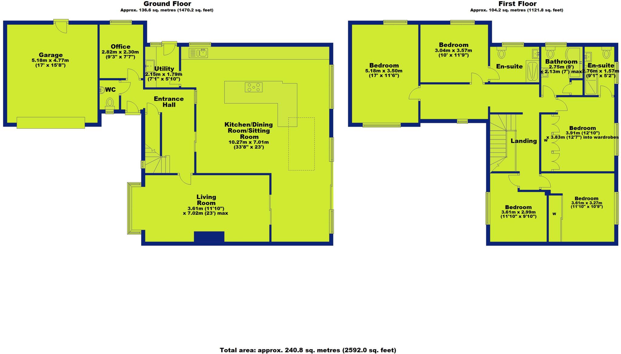
Five bedrooms, two ensuite bathrooms, family bathroom
Large open-plan kitchen/living area with underfloor heating and roof lantern
South-west facing rear garden with patio and mature fruit trees
Detached double garage plus double-width driveway for multiple cars
Recently renovated and extended; turn-key accommodation throughout
Within highly regarded school catchment; quiet cul-de-sac location
Council Tax Band G — notably higher annual charges
Double glazing install date unknown; recommend checking service histories
This renovated and extended five-bedroom detached home sits on a generous south-westerly corner plot in a quiet cul-de-sac close to top-rated local schools. The house has been updated to offer turn-key family living, with a standout open-plan kitchen/living space, underfloor heating in the extension and large sliding doors that open onto a sunny rear garden.

The layout suits a growing family: five well-proportioned bedrooms, two en-suites, a family bathroom and a ground-floor study or home office. Practical features include a separate utility room, double garage, double-width driveway and extensive built-in kitchen appliances, making day-to-day life straightforward.

Material positives are matched by clear, factual notes for buyers: Council Tax Band G means higher running costs; the double glazing install date is not recorded; the house was constructed in the 1980s, so buyers should confirm services and warranties. There is no reported flooding risk and the area records very low crime.

Overall this property offers modern, spacious family accommodation in a highly desirable West Bridgford location. It will suit buyers seeking a large, move-in-ready family home within a strong school catchment, but budget-conscious purchasers should allow for higher council tax and verify the age and service histories of major installations.

Property Details

Brochure Descriptions

Image Descriptions

Floorplan Description

Rooms

Textual Property Features

Target Audience

AI Tags

Detected Visual Features

EPC Details

Nearby Schools

Nearest Bars And Restaurants

,,,,}

Nearest General Shops

,,}

Nearest Grocery shops

,,}

Nearest Supermarkets

,,}

Nearest Religious buildings

,,}

Nearest Medical buildings

,,,}

Nearest Airports

}

Nearest Leisure Facilities

,,,,}

Nearest Tourist attractions

,,}

Nearest Train stations

,,,,}

Nearest Bus stations and stops

,,,,}

Nearest Hotels

,,}

Tags

Local Market Stats

AirBnB Data

Similar Properties

Meta

High Res Images

Compatible Images

Low res Images

Thumbnails

Raw Images

High Res Floorplan Images

Compatible Floorplan Images

Low res Floorplan Images

FloorplanImages Thumbnail

Raw Floorplan Images