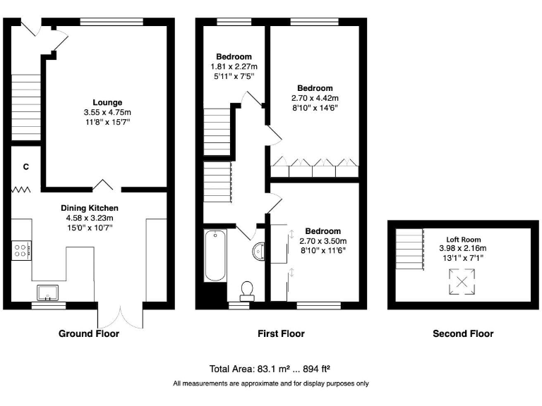
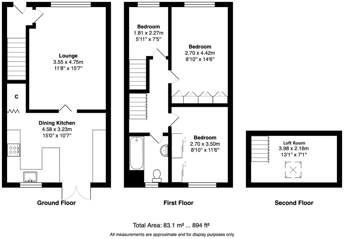
**Standout Features:**
- Three bedrooms plus a useful loft room
- Modern kitchen diner
- Off-road parking and garage
- Pleasant gardens
- Excellent access to Leeds and Bradford
**Property Summary:**
Discover a well-presented inner town house that’s perfect for families or investors looking for a comfortable and functional living space. With three bedrooms, a versatile loft room, and a modern kitchen diner, this property combines style and practicality. The off-road parking and garage provide essential convenience, while the pleasant gardens offer a welcoming outdoor space for relaxation or play.
Nestled in an established area with good transport links to Leeds and Bradford, this mid-20th-century terraced house boasts an average size of 807 square feet, making it a cozy yet functional home. Local amenities and schools, including several with outstanding ratings, enhance the appeal for families.
While the crime rate is noted to be above average, the home’s access to essential services and fast broadband offers a great blend of comfort and connectivity. Some maintenance may be needed, particularly regarding the cavity walls, which lack insulation, presenting renovation potential for the savvy buyer. Don’t miss this opportunity—schedule a viewing today to truly appreciate all that this home offers!
3 bedroom semi-detached house for sale in Ashbourne Close, Bradford, BD2 — £185,000 • 3 bed • 1 bath • 883 ft²
3 bedroom semi-detached house for sale in Whitaker Close, Bradford, BD2 — £180,000 • 3 bed • 1 bath • 915 ft²
3 bedroom terraced house for sale in Mount Terrace, Eccleshill, Bradford, BD2 — £150,000 • 3 bed • 1 bath • 829 ft²
3 bedroom terraced house for sale in Cheltenham Road, Wrose, Bradford, BD2 — £150,000 • 3 bed • 1 bath • 807 ft²
3 bedroom semi-detached house for sale in Mayo Road, Off Rooley Lane, Bradford, BD5 — £199,950 • 3 bed • 1 bath • 829 ft²
3 bedroom semi-detached house for sale in Whitehall Road, Wyke, Bradford, BD12 — £235,000 • 3 bed • 1 bath • 731 ft²


































































































