Chain-free two-bedroom home with garden, garage and easy High Street access.
Detached two‑bed bungalow in private four‑home cul‑de‑sac
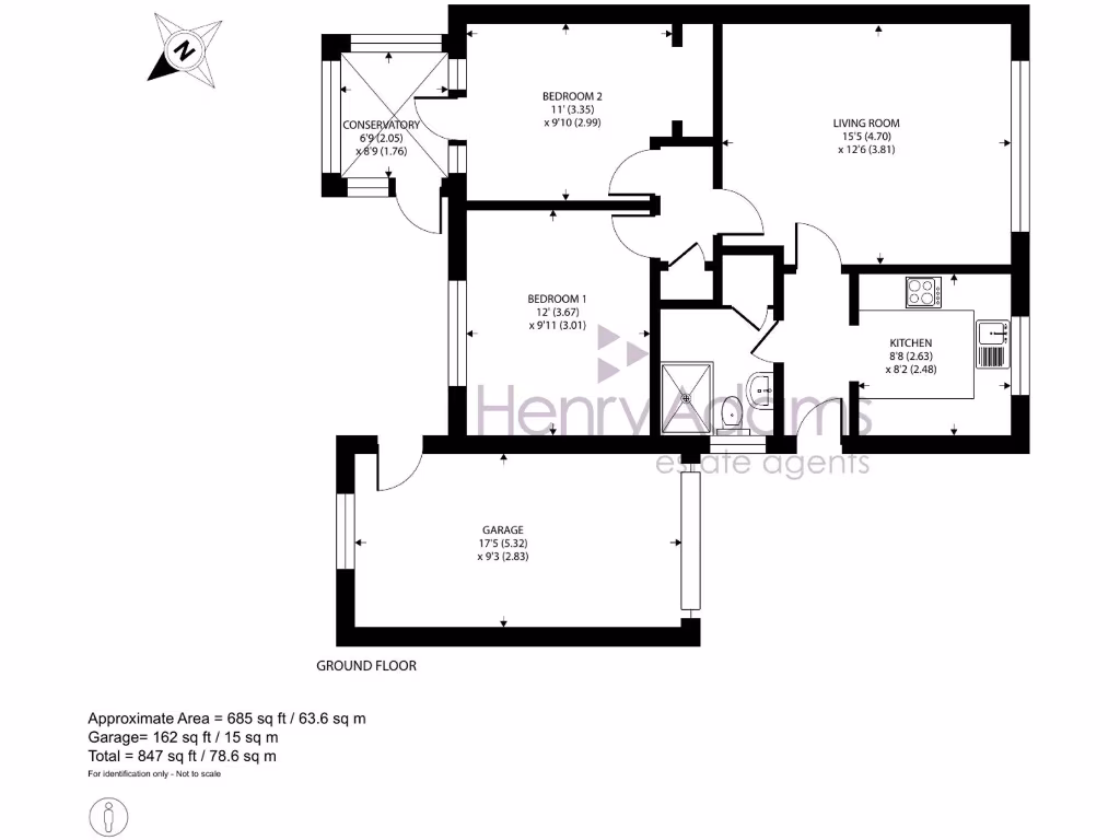
Set in a private cul‑de‑sac just moments from Selsey High Street, this detached two‑bed home is well suited to buyers seeking low‑maintenance, single‑storey living. The accommodation includes a living room, kitchen, shower room and a conservatory that opens into the rear garden. Gas central heating, double glazing and an EPC C rating give practical, economical year‑round comfort.
The plot is a strong feature: an enclosed rear garden, driveway and a garage with electricity, power and water provide useful storage and parking. The front area could be modified to create additional off‑road spaces subject to the necessary alterations and consents. Chain‑free possession means a quicker move for a purchaser ready to proceed.
Internally the bungalow is tidy but dated in places and offers clear scope for cosmetic updating to reflect contemporary tastes. The conservatory is accessed via the second bedroom, which may limit how that space is used for guests. At about 614 sq ft, the home is compact and will particularly suit couples, downsizers or investors seeking a manageable property in a sought‑after, affluent town location.
Practical benefits include excellent mobile signal, fast broadband, no flooding risk and nearby Good rated schools and local amenities. Buyers should note the age and timber‑frame construction which suggests checking specifics if planning major structural alterations or extensions.
2 bedroom semi-detached bungalow for sale in Wellington Gardens, Selsey, PO20 — £275,000 • 2 bed • 1 bath • 603 ft²
2 bedroom detached bungalow for sale in Wellington Gardens, Selsey, PO20 — £340,000 • 2 bed • 1 bath • 787 ft²
2 bedroom semi-detached bungalow for sale in Glen Crescent, Selsey, West Sussex, PO20 — £245,000 • 2 bed • 1 bath • 636 ft²
2 bedroom semi-detached bungalow for sale in Mountwood Road, Selsey, PO20 — £250,000 • 2 bed • 1 bath • 581 ft²
2 bedroom detached bungalow for sale in Dennys Close, Selsey, PO20 — £330,000 • 2 bed • 1 bath • 743 ft²
2 bedroom detached bungalow for sale in Harcourt Way, Selsey, PO20 — £375,000 • 2 bed • 1 bath • 844 ft²














































