Three-bedroom semi with garden, driveway and countryside nearby — ideal for family refurbishment..
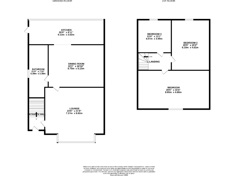
Three bedrooms with separate lounge and dining room
A spacious three-bedroom semi-detached home on Haywood Avenue, offering strong potential for a family seeking countryside access with town convenience. The property sits on a small plot with a private driveway, rear lawn and patio — ideal for outdoor family time and easy parking.
Internally the layout provides a lounge, separate dining room, kitchen and ground-floor bathroom with three bedrooms upstairs. Room sizes are practical rather than grand; the home was built mid-20th century and many interiors are dated, so the house is best suited to buyers who want to refurbish to their taste and add modern touches.
Notable positives include fast broadband, excellent mobile signal, mains gas central heating and very cheap council tax. Downsides to note: the plot is modest, there is a single bathroom, the property will need updating in places, and local crime levels are above average. Proximity to Stocksbridge amenities, good local schools and immediate countryside make this a sensible buy for families or anyone seeking renovation potential.
3 bedroom semi-detached house for sale in Oaks Avenue, Stocksbridge, Sheffield, S36 — £150,000 • 3 bed • 1 bath • 871 ft²
3 bedroom end of terrace house for sale in Spink Hall Lane, Stocksbridge, Sheffield, S36 — £165,000 • 3 bed • 1 bath • 620 ft²
3 bedroom semi-detached house for sale in Brearley Avenue, Deepcar, Sheffield, S36 — £185,000 • 3 bed • 1 bath • 952 ft²
3 bedroom semi-detached house for sale in Brearley Avenue, Deepcar, Sheffield, S36 — £170,000 • 3 bed • 1 bath • 837 ft²
3 bedroom semi-detached house for sale in Glebelands Road, Stocksbridge, Sheffield, S36 — £200,000 • 3 bed • 1 bath • 793 ft²
3 bedroom terraced house for sale in Glebelands Road, Stocksbridge, Sheffield, S36 — £175,000 • 3 bed • 2 bath • 935 ft²














































