Period charm, loft room and a sunny south garden close to station and schools.
Victorian end terrace with many original features and high ceilings
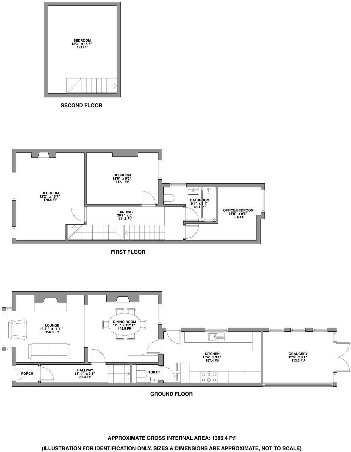
Loft conversion provides sizable additional double room
South-facing cottage-style garden with low-maintenance artificial lawn
Short walk to Sutton Coldfield town centre and train station
Excellent school catchment including two grammar schools nearby
Front elevations are listed — alterations likely restricted and costly
Area records very high crime rates; consider security and insurance costs
Purchaser fee 1% plus VAT payable on completion
This substantial Victorian end terrace on Tudor Road combines original period detail with practical family living. High ceilings, bay windows and the original Minton tiled hallway give the house strong character while a loft conversion provides flexible extra space.
The property sits moments from Sutton Coldfield town centre, train station and Sutton Park — ideal for commuters and families. The south-facing cottage-style garden and recently refurbished conservatory offer low-maintenance outdoor space and a bright entertaining room opening to the patio.
Important practical points are clear: the front elevations are listed which may restrict alterations and cause additional consent costs. The area records very high crime and higher deprivation indices; buyers should factor this into insurance, security and long-term considerations. A purchaser fee of 1% plus VAT is payable on completion. Tenure is believed to be freehold but buyers should verify legal status with their solicitor.
Overall, this home will suit families and professionals seeking period charm, strong local schools and excellent transport links, provided they accept the listed-status constraints and local social challenges.
3 bedroom terraced house for sale in Tudor Road, Sutton Coldfield, B73 — £495,000 • 3 bed • 1 bath • 1113 ft²
5 bedroom semi-detached house for sale in Mayfield Road, Wylde Green, Sutton Coldfield, B73 5QL, B73 — £800,000 • 5 bed • 2 bath • 2135 ft²
2 bedroom terraced house for sale in Lyndon Road, Sutton Coldfield, B73 — £325,000 • 2 bed • 1 bath • 765 ft²
2 bedroom terraced house for sale in Highbridge Road, Boldmere, Sutton Coldfield, B73 — £300,000 • 2 bed • 1 bath • 1063 ft²
3 bedroom semi-detached house for sale in Holland Road, Sutton Coldfield, B72 — £475,000 • 3 bed • 1 bath
5 bedroom semi-detached house for sale in Bishops Road, Sutton Coldfield, B73 — £879,950 • 5 bed • 2 bath • 2070 ft²














































































































































































































