Grade II listed period property with authentic character
Versatile 4-bedroom layout across approximately 1,131 sq ft
Private low-maintenance rear courtyard, small plot
Single bathroom serving four bedrooms — may need modernisation
Moments from Tenterden High Street; fast broadband and excellent mobile signal
Listed status restricts alterations and can increase maintenance costs
Freehold tenure; no flooding risk
Council tax band above average
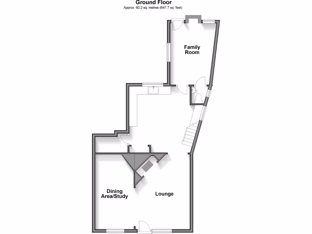
This Grade II listed semi-detached Georgian house blends period character with practical living in central Tenterden. Exposed beams, sash windows and a brick fireplace create authentic charm across a flexible layout that includes a dedicated lounge, family room, study/dining area and a well-proportioned kitchen with walk-in larder.
The property is compact (about 1,131 sq ft) and sits on a small plot with a private, low-maintenance rear courtyard — ideal for buyers seeking town-centre convenience without a large garden to maintain. It sits moments from the High Street, with fast broadband, excellent mobile signal and easy access to good local primary and secondary schools.
Buyers should note the listed status, which preserves historic features but will add constraints and possible extra cost to alterations and maintenance. There is a single bathroom serving four bedrooms and council tax is above average. The house offers renovation potential where modernisation is desired, making it suitable for buyers who value character but are prepared to manage sympathetic upgrades.
Overall this home will suit families or professionals wanting period character in a desirable, affluent small-town location, and those prepared to accept listed-building restrictions in exchange for a rare, characterful property close to amenities.































































