Huge plot near North Cornwall coast — full renovation required, auction sale.
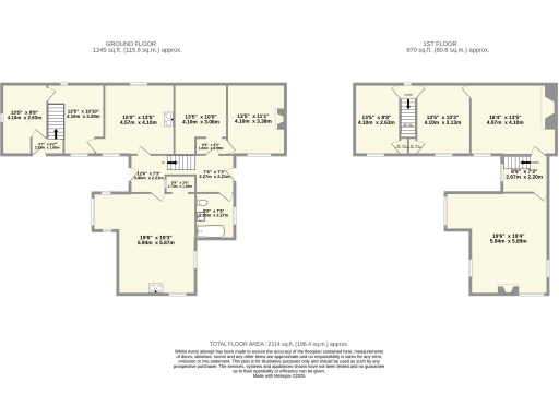
Substantial c.2,114 sq ft footprint across two storeys, generous room sizes
Anderton Barn is a very large detached farmhouse on a substantial near-2-acre plot in a quiet Cornish hamlet, offered as a clear renovation project with significant scope for improvement and value uplift. The property is uninhabitable in its current state and will be sold at public auction on 12 November 2025, making it most suitable for a buyer prepared to undertake a full refurbishment or conversion.
The building occupies an elevated, rural position not far from the North Cornwall coast and benefits from extensive grounds with a level front garden area and a steeper paddock to the rear with valley views. The house shows traditional stone and brick construction, multiple chimneys and original internal features such as flagstone flooring in parts — useful starting points for restoration.
Important negatives are clear and material: the property requires complete renovation, has no mains services connected (prospective buyers must investigate connection costs), and is uninhabitable as presented. Energy rating is very poor (EPC G), there is a medium flood risk, and the sale is subject to auction conditions including a buyer’s administration fee and a 10% deposit at exchange. These factors suit experienced developers, builders or investors who can budget accurately for works and legal/auction costs.
For a buyer willing to take on the project, the combination of size, seclusion and coastal-proximate location offers strong upside — either as a restored family home, a holiday let (subject to planning) or a subdivision/annex opportunity. Full structural survey, services enquiries and review of the auction legal pack are essential before bidding.
2 bedroom farm house for sale in St. Breward, Bodmin, PL30 — £230,000 • 2 bed • 1 bath
6 bedroom farm house for sale in Camelford, ., Cornwall, PL32 9TZ, PL32 — £500,000 • 6 bed • 4 bath • 2733 ft²
4 bedroom detached house for sale in Carcade Cottage, Camelford, PL32 — £525,000 • 4 bed • 1 bath • 485 ft²
Barn for sale in Marhamchurch, Bude, EX23 — £395,000 • 1 bed • 1 bath • 1895 ft²
6 bedroom detached house for sale in Melorne Farm, Camelford, PL32 — £500,000 • 6 bed • 4 bath • 3530 ft²
Land for sale in Crackington Haven, Bude, EX23 — £150,000 • 1 bed • 1 bath • 656 ft²


















































